首页
伤感说说
动漫配图
心情说说
抖音文案
伤感图片
伤感说说:
伤感的句子说说心情
空间说说
心情说说
爱情说说
女生伤感说说
人生感悟
心情不好的说说
说说带图片
关于生活的说说
说说心情短语
qq空间说说带图片
个性说说
励志名言
一句话经典语录
感悟人生的经典句子
短句吧
情感故事
抖音文案
伤感图片:
伤感图片带字
非主流伤感图片
唯美伤感图片
女生伤感图片
唯美意境图片
悲伤的图片
唯美意境伤感图片
只有字的伤感图片
说说图片
伤心的图片
美甲图片
图片大全
情感图片
微信头像男
动态壁纸
动漫配图
伤感图片
首页
>
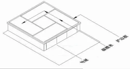
榻榻米施工步骤图
榻榻米施工步骤图,木工板做榻榻米过程图
如何设计施工榻榻米房间?
装饰监理解析:榻榻米地台制作施工工艺
榻榻米房间的木工施工完毕,现场看起来很不错.
如何设计施工榻榻米房间?
襄阳玖五世家榻榻米现场施工图
更多推荐
木工板做榻榻米过程图
榻榻米做法
木工做的榻榻米效果图
榻榻米木工施工图
榻榻米图
榻榻米装修图
什么是榻榻米床图
榻榻米内部结构图
榻榻米床效果图
榻榻米装修效果图
榻榻米房间效果图
榻榻米卧室效果图
榻榻米书房设计图
榻榻米图片
榻榻米尺寸图
榻榻米装修图新款
1.5米榻榻米床效果图
最新榻榻米软包图
榻榻米床柜子一体图
窗户边榻榻米效果图
新式榻榻米床的图片
书柜衣柜榻榻米组合图
榻榻米床图片大全集
榻榻米床连衣柜图片
榻榻米床柜一体效果图
榻榻米加衣柜加书桌图
现在流行的榻榻米床图
最新榻榻米卧室装修图
榻榻米床带衣柜效果图
榻榻米