首页
伤感说说
动漫配图
心情说说
抖音文案
伤感图片
伤感说说:
伤感的句子说说心情
空间说说
心情说说
爱情说说
女生伤感说说
人生感悟
心情不好的说说
说说带图片
关于生活的说说
说说心情短语
qq空间说说带图片
个性说说
励志名言
一句话经典语录
感悟人生的经典句子
短句吧
情感故事
抖音文案
伤感图片:
伤感图片带字
非主流伤感图片
唯美伤感图片
女生伤感图片
唯美意境图片
悲伤的图片
唯美意境伤感图片
只有字的伤感图片
说说图片
伤心的图片
美甲图片
图片大全
情感图片
微信头像男
动态壁纸
动漫配图
伤感图片
首页
>
三甲医院平面图
三甲医院平面图,三甲医院效果图
97亿元!鹤山市人民医院新院区建设火热推进!建成时间是
某三甲医院建筑图纸
你可能喜欢 三级医院评 全国三级特等医院 全国三级医院 全国三甲医院
医院总平面图(图片来源:南京江北新区微信公众号)
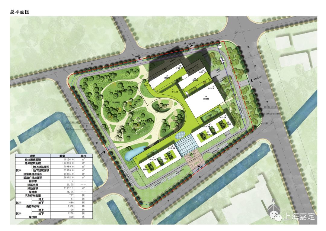
上海市中医医院嘉定院区总平面图
更多推荐
三甲医院效果图
三甲医院图片
三甲医院图标
三甲医院证明图片
三甲医院
三甲医院病房
北京三甲医院
三甲医院证明
成都三甲医院
三甲医院进修证样本图
三甲医院床位价目表
三甲医院体检报告图片
三甲医院病历证明图片
三甲医院病假条图片
三甲医院是什么意思
三甲医院体检报告
三甲医院公章图片大全
三甲医院过敏证明图片
平面图
三甲医院证明病假
景观平面图
学校平面图
楼梯平面图
简单平面图
室内设计平面图
室内平面图
三甲医院入职体检报告
建筑平面图
平面图手绘
房屋平面图