首页
伤感说说
动漫配图
心情说说
抖音文案
伤感图片
伤感说说:
伤感的句子说说心情
空间说说
心情说说
爱情说说
女生伤感说说
人生感悟
心情不好的说说
说说带图片
关于生活的说说
说说心情短语
qq空间说说带图片
个性说说
励志名言
一句话经典语录
感悟人生的经典句子
短句吧
情感故事
抖音文案
伤感图片:
伤感图片带字
非主流伤感图片
唯美伤感图片
女生伤感图片
唯美意境图片
悲伤的图片
唯美意境伤感图片
只有字的伤感图片
说说图片
伤心的图片
美甲图片
图片大全
情感图片
微信头像男
动态壁纸
动漫配图
伤感图片
首页
>
旗台旗杆标准尺寸
旗台旗杆标准尺寸,企业旗杆三面旗底座
兴发国际 旗杆配件 旗杆旗台系列1
草图大师现代升旗台学校旗台旗杆红旗国旗旗帜su模型
旗台11_旗台_产品展示_沈阳市于洪区旗杆姐金属制品
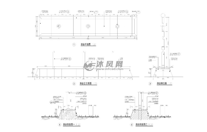
旗台旗杆做法详图
旗台旗杆做法详图
更多推荐
企业旗杆三面旗底座
国旗旗杆标准尺寸
标准尺寸
旗杆基础尺寸
工地旗台标准尺寸图片
三根旗杆的旗台尺寸
工地旗台旗杆标准尺寸
工地旗台
旗台的尺寸
国旗杆底座水泥台图片
企业三杆旗台效果图
标准旗台尺寸示意图
旗杆旗台
旗杆旗台图片大全
学校旗台旗杆标准尺寸
国旗旗杆底座座台
旗台图片
企业旗台标准尺寸图片
升旗台效果图
三根旗杆旗台式样图
企业旗杆三面旗台阶
旗台样式
国旗台底座尺寸
国旗旗台标准尺寸
三杆旗台
旗杆台
旗台标准尺寸
旗杆底座台子图片
旗台
旗台效果图