首页
伤感说说
动漫配图
心情说说
抖音文案
伤感图片
伤感说说:
伤感的句子说说心情
空间说说
心情说说
爱情说说
女生伤感说说
人生感悟
心情不好的说说
说说带图片
关于生活的说说
说说心情短语
qq空间说说带图片
个性说说
励志名言
一句话经典语录
感悟人生的经典句子
短句吧
情感故事
抖音文案
伤感图片:
伤感图片带字
非主流伤感图片
唯美伤感图片
女生伤感图片
唯美意境图片
悲伤的图片
唯美意境伤感图片
只有字的伤感图片
说说图片
伤心的图片
美甲图片
图片大全
情感图片
微信头像男
动态壁纸
动漫配图
伤感图片
首页
>
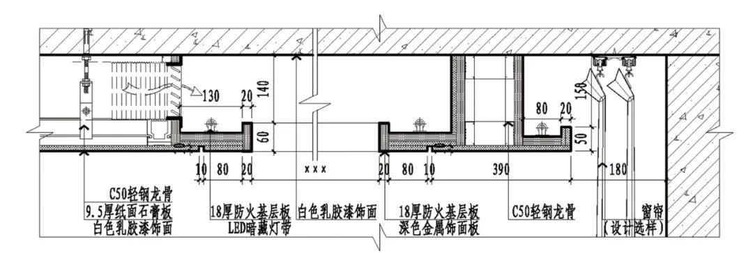
顶棚节点图
顶棚节点图,吊顶节点图
客厅顶棚节点图
现代石膏板吊顶节点图施工图下载
太全了!地面,吊顶,墙面工程三维节点做法施工工艺详解
免费吊顶详图资料下载
关键词: 天花节点详图金属棚透视图西式吊顶节点中式
更多推荐
吊顶节点图
顶棚图
顶棚平面图
节点图
节点效果图
顶棚布置图
地面节点图
节点分析图
景观节点图
节点详图
顶棚图手绘
节点大样图
顶棚吊顶
节点图手绘
节点图线稿
顶棚图cad
玻璃顶棚图片
顶棚
景观节点分析图
节点图怎么画
景观节点平面图
顶棚装修效果图
室外顶棚
建筑顶棚
室内顶棚
顶棚设计
玻璃顶棚
顶棚材料
节点
户外顶棚