首页
伤感说说
动漫配图
心情说说
抖音文案
伤感图片
伤感说说:
伤感的句子说说心情
空间说说
心情说说
爱情说说
女生伤感说说
人生感悟
心情不好的说说
说说带图片
关于生活的说说
说说心情短语
qq空间说说带图片
个性说说
励志名言
一句话经典语录
感悟人生的经典句子
短句吧
情感故事
抖音文案
伤感图片:
伤感图片带字
非主流伤感图片
唯美伤感图片
女生伤感图片
唯美意境图片
悲伤的图片
唯美意境伤感图片
只有字的伤感图片
说说图片
伤心的图片
美甲图片
图片大全
情感图片
微信头像男
动态壁纸
动漫配图
伤感图片
首页
>
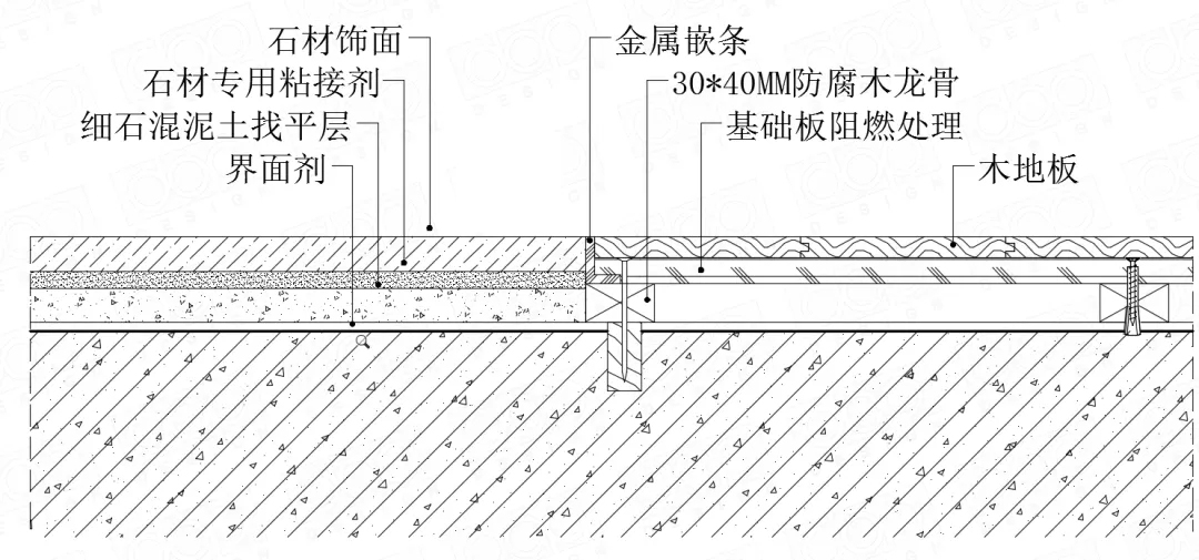
室内地面节点详图
室内地面节点详图,室内节点详图
室内设计施工工艺04石材该如何收边收口
墙面地面收口节点详图
墙面吊顶地坪门表卫浴节点大样详图图集
全国通用地面节点大样详图施工图下载
室内石材地面墙面常见节点cad图_详图
更多推荐
室内节点详图
室内地面构造详图
室内设计节点详图
室内地面剖面图
墙面节点详图
地面节点图
墙身剖面节点详图
地面节点大样图
地面节点图高清
卫生间地面节点图
室内地面铺装图
教室地面构造详图
室内设计节点图
窗台节点详图
地面节点图怎么画
墙体节点详图
室内详图
外墙节点详图
墙身节点详图
吊顶节点详图
室内地面贴图
天花节点详图
室内局部详图
景观节点详图
节点详图
楼地面构造详图
门窗节点详图
构造节点详图
石材干挂节点详图
室内地面