首页
伤感说说
动漫配图
心情说说
抖音文案
伤感图片
伤感说说:
伤感的句子说说心情
空间说说
心情说说
爱情说说
女生伤感说说
人生感悟
心情不好的说说
说说带图片
关于生活的说说
说说心情短语
qq空间说说带图片
个性说说
励志名言
一句话经典语录
感悟人生的经典句子
短句吧
情感故事
抖音文案
伤感图片:
伤感图片带字
非主流伤感图片
唯美伤感图片
女生伤感图片
唯美意境图片
悲伤的图片
唯美意境伤感图片
只有字的伤感图片
说说图片
伤心的图片
美甲图片
图片大全
情感图片
微信头像男
动态壁纸
动漫配图
伤感图片
首页
>
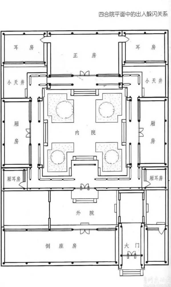
四合院五进院子平面图
四合院五进院子平面图,古代五进院子平面图
10号院里边的简易楼原本是花屋子,藏花的窖.
【图】新中式四合院平面图大全 揭秘四合院的总体格局
2三进四合院三进四合院平面图山墙犀头书房立面书房平面四进四合院
三进四合院平面图
1分钟了解北京四合院基本格局
更多推荐
古代五进院子平面图
五进三跨四合院平面图
四合院三进院子平面图
四合院二进院子平面图
五进五出的院子平面图
大型五进四合院平面图
二进四合院平面图
四进院子平面图
十三进四合院平面图
大型八进四合院平面图
四合院平面图
四合院院子景观图
古代四进院子平面图
七进院子平面图
一进院子平面图
四合院院子地砖带图
二进二出的院子平面图
情满四合院平面图
三进的院子平面图
别墅院子平面图
院子平面图
院子平面图中式
九进四重院落平面图
古代一进院子平面图
院子设计平面图
农村院子平面图
四合院院子
院子平面图布局
四合院庭院设计实景图
四合院设计图及效果图