首页
伤感说说
动漫配图
心情说说
抖音文案
伤感图片
伤感说说:
伤感的句子说说心情
空间说说
心情说说
爱情说说
女生伤感说说
人生感悟
心情不好的说说
说说带图片
关于生活的说说
说说心情短语
qq空间说说带图片
个性说说
励志名言
一句话经典语录
感悟人生的经典句子
短句吧
情感故事
抖音文案
伤感图片:
伤感图片带字
非主流伤感图片
唯美伤感图片
女生伤感图片
唯美意境图片
悲伤的图片
唯美意境伤感图片
只有字的伤感图片
说说图片
伤心的图片
美甲图片
图片大全
情感图片
微信头像男
动态壁纸
动漫配图
伤感图片
首页
>
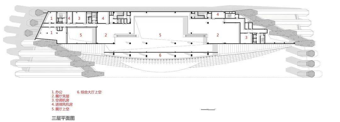
盐城市博物馆平面图
盐城市博物馆平面图,博物馆平面图布置图
江阴博物馆平面图
天津博物馆平面图-天津博物馆第22张图片
天津博物馆平面图-天津博物馆第20张图片
分享宁波博物馆cad平面图资料下载
盐城湿地文化的新地标中国黄海湿地博物馆
更多推荐
博物馆平面图布置图
盐城市博物馆
博物馆平面图
博物馆设计平面图
小型博物馆平面图
良渚博物馆平面图
苏州博物馆平面图
宁波博物馆平面图
博物馆平面图手绘
上海自然博物馆平面图
小型博物馆设计平面图
北京汽车博物馆平面图
北京首都博物馆平面图
南京博物院平面图
盐都区博物馆
博物馆cad平面布置图
宁波博物馆设计图
博物馆效果图
公园平面图
宁波博物馆立面
博物馆图片
故宫平面图高清大图
中国海盐博物馆
故宫平面图
天津博物馆
餐厅平面图
小区平面图
国际博物馆日
博物馆
广州博物馆