首页
伤感说说
动漫配图
心情说说
抖音文案
伤感图片
伤感说说:
伤感的句子说说心情
空间说说
心情说说
爱情说说
女生伤感说说
人生感悟
心情不好的说说
说说带图片
关于生活的说说
说说心情短语
qq空间说说带图片
个性说说
励志名言
一句话经典语录
感悟人生的经典句子
短句吧
情感故事
抖音文案
伤感图片:
伤感图片带字
非主流伤感图片
唯美伤感图片
女生伤感图片
唯美意境图片
悲伤的图片
唯美意境伤感图片
只有字的伤感图片
说说图片
伤心的图片
美甲图片
图片大全
情感图片
微信头像男
动态壁纸
动漫配图
伤感图片
首页
>
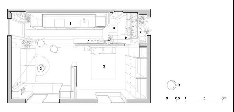
40平米单身公寓平面图
40平米单身公寓平面图,40平单身公寓户型图
40平米单身公寓,求布局空间合理改造.
户型方案讲解点评:40平米单身公寓#户型优化
37mloft单身公寓,求更加完美的平面布局~_信江帝景5栋1313一层.jpg
5万40平米简约一居室装修效果图,40平方单身公寓装修
int2 | 回收木 不锈钢打造复古工业风单身公寓
更多推荐
40平单身公寓户型图
复式单身公寓平面图
40平米酒店房间平面图
单身公寓户型平面图
40平米单身公寓设计图
单身公寓一室一厅
45平单身公寓平面图
50平米单身公寓平面图
30平米公寓平面图
40平方单身公寓户型图
50平米单身公寓户型图
50平米单身公寓
40平单身公寓设计图
复式公寓平面图
60平米单身公寓平面图
25平米单身公寓平面图
18平米单身公寓平面图
单身公寓平面图简单
小户型单身公寓平面图
单身公寓平面图
单身公寓平面设计图
40平米单身公寓
40平米单身公寓布置
40平米单身公寓装修
单身公寓平面设计图纸
18平米单身公寓效果图
单身公寓平面图手绘
武汉单身公寓40平米
合肥40平米单身公寓
25平米单身公寓