80平方3房一厅设计图,80平米两室一厅设计图

80平方平房两室两厅一卫户型图

80平方我要建三层楼,一楼一厨一卫一厅一房,两楼全是房间,有一个房间

简约欧式80平方房屋设计图

80平米小户型(小三房)怎么装?花1分钟让你彻底搞明白!

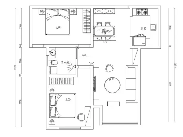
本案户型是2室2厅1卫1厨,建筑面积约80平方米,是不错的的户型
- 80平米两室一厅设计图
- 80平米三室一厅设计图
- 80平米三室一厅平面图
- 乡下80平方房设计图
- 80平方三室一厅设计图
- 80平方二室一厅设计图
- 80平方3房屋设计图
- 80平米一层平房设计图
- 80平方米的平房设计图
- 80平方三房设计图
- 300平方米的房子设计图
- 80平方房子设计图大全
- 80平方自建房子设计图
- 80平方米的房子设计图
- 80平方两层楼房设计图
- 100平方自建房子设计图
- 120平方房子设计图
- 40平方米房子设计图
- 80平方米自建房设计图
- 60平方米的房子设计图
- 70平方米的房子设计图
- 70平三室一厅设计图
- 80平方地基房屋设计图
- 农村建房80平方设计图
- 80平方小别墅设计图
- 70平方米自建房设计图
- 80平方房子设计
- 80平方窗帘店设计图
- 建房80平米图纸设计
- 平房设计图
