首页
伤感说说
动漫配图
心情说说
抖音文案
伤感图片
伤感说说:
伤感的句子说说心情
空间说说
心情说说
爱情说说
女生伤感说说
人生感悟
心情不好的说说
说说带图片
关于生活的说说
说说心情短语
qq空间说说带图片
个性说说
励志名言
一句话经典语录
感悟人生的经典句子
短句吧
情感故事
抖音文案
伤感图片:
伤感图片带字
非主流伤感图片
唯美伤感图片
女生伤感图片
唯美意境图片
悲伤的图片
唯美意境伤感图片
只有字的伤感图片
说说图片
伤心的图片
美甲图片
图片大全
情感图片
微信头像男
动态壁纸
动漫配图
伤感图片
首页
>
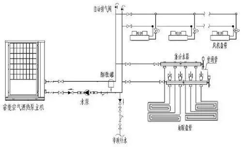
空气能水箱内部结构图
空气能水箱内部结构图,水箱内部结构图
空气能热水器水循环与氟循环有什么区别,原理是什么
【小型空气能热水器】原设计图纸不合理怎么办?
超全面的空气源热泵冷暖设计与应用
三仓太阳能和空气能,电热水器哪个好?
空气能热水器是蓄热式的,根据水箱内的温度自动加热,保证热水24小时
更多推荐
水箱内部结构图
方形水箱内部结构图
缓冲水箱内部结构图
汽车水箱内部结构图
马桶水箱内部结构图
消防水箱内部结构图
不锈钢水箱内部结构图
不锈钢水箱内部结构
马桶水箱内部结构讲解
钢板焊接水箱内部结构
马桶内部结构图排水
马桶内部结构图图解
空气能回水管安装图
马桶水箱内部拆装图
不锈钢方形水箱结构图
不锈钢水箱内部解剖图
空气能热水器安装图
马桶内部结构图
马桶水箱水满漏水图解
水箱内部拉筋图
火炕内部结构图图纸
空气能安装示意图
空气能安装图
虹吸式马桶内部结构图
鼻子内部结构图图解
水箱浮球阀安装图
火炕内部结构图家用
空气能热水器原理
人体内部结构图
天和核心舱内部结构图