首页
伤感说说
动漫配图
心情说说
抖音文案
伤感图片
伤感说说:
伤感的句子说说心情
空间说说
心情说说
爱情说说
女生伤感说说
人生感悟
心情不好的说说
说说带图片
关于生活的说说
说说心情短语
qq空间说说带图片
个性说说
励志名言
一句话经典语录
感悟人生的经典句子
短句吧
情感故事
抖音文案
伤感图片:
伤感图片带字
非主流伤感图片
唯美伤感图片
女生伤感图片
唯美意境图片
悲伤的图片
唯美意境伤感图片
只有字的伤感图片
说说图片
伤心的图片
美甲图片
图片大全
情感图片
微信头像男
动态壁纸
动漫配图
伤感图片
首页
>
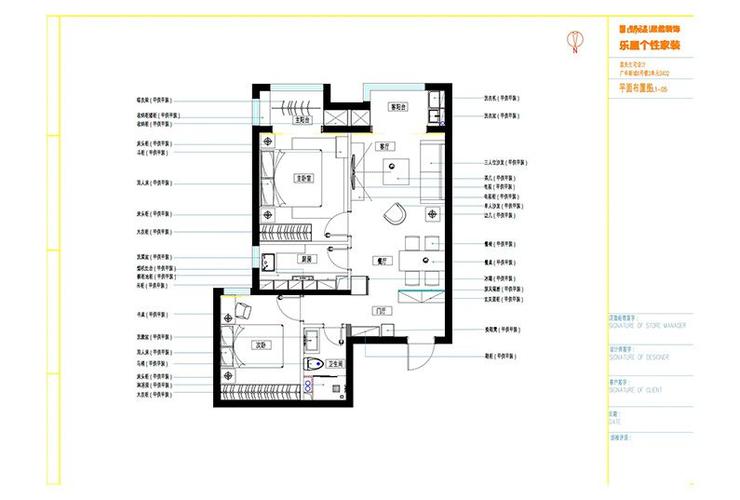
广华新城户型图三区
广华新城户型图三区,广华新城户型图二区
广华新城户型图
广华新城2室2厅1卫1厨77.00㎡户型图
广华新城7075平米现代北欧装修效果图
广华新城_90平米
广华华美新区续建a期3室1厅2卫1厨173.00㎡户型图
更多推荐
广华新城户型图二区
广华新城一区户型图
广华新城户型图
广华新城户型图70
广华新城户型图80
广华新城户型图90
北京广华新城户型图
广华新城户型图120
广华新城70平户型图
广华新城90平米户型图
广华新城117户型
广华新城小区图片
广华新城105平米户型图
广华新城120平米户型图
广德金峰新城户型图
国际新城户型图
阳光新城户型图
水岸新城户型图
博罗富华新城户型图
淮安新城睿园户型图
角美水岸新城户型图
恒大新城户型图
重庆恒大新城户型图
平湖新城公馆户型图
宿州恒福新城户型图
广华新城规划平面图
溧阳金峰新城户型图
广华新城规划图
广华新城二区
汉阳仙山新城户型图