首页
伤感说说
动漫配图
心情说说
抖音文案
伤感图片
伤感说说:
伤感的句子说说心情
空间说说
心情说说
爱情说说
女生伤感说说
人生感悟
心情不好的说说
说说带图片
关于生活的说说
说说心情短语
qq空间说说带图片
个性说说
励志名言
一句话经典语录
感悟人生的经典句子
短句吧
情感故事
抖音文案
伤感图片:
伤感图片带字
非主流伤感图片
唯美伤感图片
女生伤感图片
唯美意境图片
悲伤的图片
唯美意境伤感图片
只有字的伤感图片
说说图片
伤心的图片
美甲图片
图片大全
情感图片
微信头像男
动态壁纸
动漫配图
伤感图片
首页
>
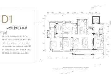
奥山府澎湃城户型图
奥山府澎湃城户型图,奥山澎湃城户型图
光谷澎湃城奥山府
光谷澎湃城奥山府户型图
光谷澎湃城奥山府
武汉光谷澎湃城奥山府户型图-房型图-平面图-吉屋网
光谷澎湃城奥山府e1_光谷澎湃城奥山府户型图-武汉
更多推荐
奥山澎湃城户型图
奥山府澎湃城
成都奥山府澎湃城
武汉奥山府澎湃城
光谷澎湃城奥山府
江山府户型图
光谷澎湃城奥山府别墅
缙山府二期户型图
光谷奥山府澎湃城烂尾
光谷澎湃城奥山府事件
翰林府户型图
江南府户型图
正荣府户型图
金悦府户型图
武汉光谷澎湃城奥山府
开元府户型图
公园府户型图
麓铭府户型图
明熙府户型图
观澜府户型图
国瑞府户型图
永定府户型图
东阳府户型图
奥山汉口澎湃城
滁州正荣府户型图
金麟府户型图
华润永定府户型图
瓃宸府户型图
湖州府户型图
十堰国瑞府户型图