首页
伤感说说
动漫配图
心情说说
抖音文案
伤感图片
伤感说说:
伤感的句子说说心情
空间说说
心情说说
爱情说说
女生伤感说说
人生感悟
心情不好的说说
说说带图片
关于生活的说说
说说心情短语
qq空间说说带图片
个性说说
励志名言
一句话经典语录
感悟人生的经典句子
短句吧
情感故事
抖音文案
伤感图片:
伤感图片带字
非主流伤感图片
唯美伤感图片
女生伤感图片
唯美意境图片
悲伤的图片
唯美意境伤感图片
只有字的伤感图片
说说图片
伤心的图片
美甲图片
图片大全
情感图片
微信头像男
动态壁纸
动漫配图
伤感图片
首页
>
板施工图
板施工图,工地施工图
2×10m预应力混凝土简支空心板桥简支板施工图设计
铝板穿孔创意景墙施工图
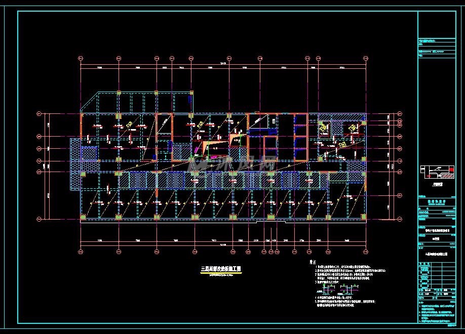
三层局部改造板施工图
板配筋平法施工图
天花石膏板吊顶节点施工图下载
更多推荐
工地施工图
工装施工图
施工图效果图
施工图
水电施工图图纸
施工图设计
施工图整套
结构施工图
装修施工图
平面施工图
水电施工图
景观施工图
建筑施工图
施工图绘制
水电施工图设计图
施工图纸高清图片
建筑施工图纸平面图
施工图怎么画
水电施工图现场
建筑施工图整套
cad施工图
建筑设计施工图优化