首页
伤感说说
动漫配图
心情说说
抖音文案
伤感图片
伤感说说:
伤感的句子说说心情
空间说说
心情说说
爱情说说
女生伤感说说
人生感悟
心情不好的说说
说说带图片
关于生活的说说
说说心情短语
qq空间说说带图片
个性说说
励志名言
一句话经典语录
感悟人生的经典句子
短句吧
情感故事
抖音文案
伤感图片:
伤感图片带字
非主流伤感图片
唯美伤感图片
女生伤感图片
唯美意境图片
悲伤的图片
唯美意境伤感图片
只有字的伤感图片
说说图片
伤心的图片
美甲图片
图片大全
情感图片
微信头像男
动态壁纸
动漫配图
伤感图片
首页
>
美妆店平面图
美妆店平面图,美妆店内图片
2f平面图
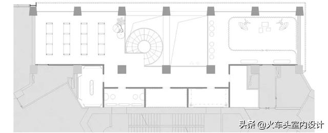
一层平面图目前这家话梅美妆店连续被大众点评和小红书评为北京区最受
平面图轴测图项目信息project info项目业主 丨 loonecommune乐玩公社
品观中国行武清林大方接客安徽美林美妆有何绝招
黑洞二层平面图
更多推荐
美妆店内图片
美妆店门头
美妆店设计
美妆店
美妆店内景
美妆店实拍
国际美妆店
商场美妆店
美妆店铺logo图
美妆店装修风格完整图
高端美妆店
美妆店宣传画
韩国美妆店
美妆店名字
美妆集合店
平面图
网红美妆店
室内平面图
万达美妆店
简单平面图
平面图手绘
餐厅平面图
小区平面图
美妆店铺头像图片
平面图怎么画
景观平面图
房屋平面图
公园平面图
建筑平面图
平面图制作