首页
伤感说说
动漫配图
心情说说
抖音文案
伤感图片
伤感说说:
伤感的句子说说心情
空间说说
心情说说
爱情说说
女生伤感说说
人生感悟
心情不好的说说
说说带图片
关于生活的说说
说说心情短语
qq空间说说带图片
个性说说
励志名言
一句话经典语录
感悟人生的经典句子
短句吧
情感故事
抖音文案
伤感图片:
伤感图片带字
非主流伤感图片
唯美伤感图片
女生伤感图片
唯美意境图片
悲伤的图片
唯美意境伤感图片
只有字的伤感图片
说说图片
伤心的图片
美甲图片
图片大全
情感图片
微信头像男
动态壁纸
动漫配图
伤感图片
首页
>
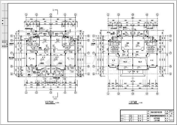
串联式建筑平面图
串联式建筑平面图,徽式建筑图片及平面图
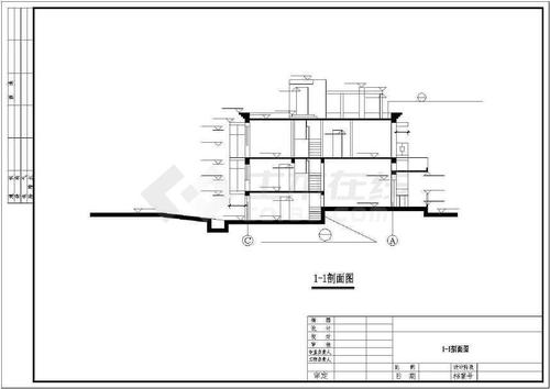
联排多层住宅楼建筑设计施工图
a1-二层消防平面图
串联式的空间组合形式非常的适用于展览类的建筑,各展厅能够相互串联
并联别墅建筑施工平立剖面图纸(共4张)
连排别墅建筑施工图(共14张)
更多推荐
徽式建筑图片及平面图
综合式建筑平面图
建筑平面图
规则式园林平面图
围合式布局平面图
自然式园林平面图
岛式厨房平面图
自然式水体平面图
一板两带式道路平面图
规则式园林设计平面图
规则式水体设计平面图
半岛式厨房平面图
单元式住宅楼平面图
规则式园林平面图简单
独立式住宅设计平面图
规则式公园设计平面图
平面图
室内平面图
规则式园林平面图手绘
自然式园林设计平面图
简单平面图
徽式建筑
景观平面图
室内设计平面图
房屋平面图
徽式建筑马头墙
自然式园林景观平面图
自然式水体平面图手绘
楼梯平面图
徽式建筑别墅图片大全