首页
伤感说说
动漫配图
心情说说
抖音文案
伤感图片
伤感说说:
伤感的句子说说心情
空间说说
心情说说
爱情说说
女生伤感说说
人生感悟
心情不好的说说
说说带图片
关于生活的说说
说说心情短语
qq空间说说带图片
个性说说
励志名言
一句话经典语录
感悟人生的经典句子
短句吧
情感故事
抖音文案
伤感图片:
伤感图片带字
非主流伤感图片
唯美伤感图片
女生伤感图片
唯美意境图片
悲伤的图片
唯美意境伤感图片
只有字的伤感图片
说说图片
伤心的图片
美甲图片
图片大全
情感图片
微信头像男
动态壁纸
动漫配图
伤感图片
首页
>
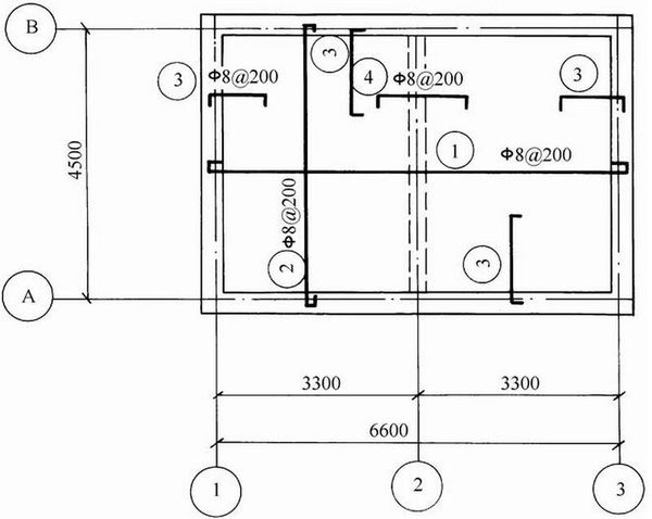
楼板标注图和解释
楼板标注图和解释,梁原位标注详细解释
建筑施工图楼板配筋图怎么画
标准层楼板配筋图
楼板配筋图求解!
[分享]钢结构楼板cad图纸资料下载
图楼板钢筋集中标注
更多推荐
梁原位标注详细解释
梁钢筋标注详解图片
楼板钢筋布置讲解图
楼板配筋图
梁的原位标注图解含义
梁钢筋平面标注法图解
位置度标注方法图解
梁的原位标注实例图解
楼板图片
标注图标
六时标注法图解
梁板式楼板
板式楼板
图纸标注符号大全
标注地图
压型钢板楼板
焊接符号标注图解示例
倒角标注
楼板
如何在图片上做标注
垂直度标注
空心楼板
楼板钢筋
叠合楼板
无梁楼板
地图标注服务
浮筑楼板
点香图片解释图
天气图标大全解释图片
木楼板