首页
伤感说说
动漫配图
心情说说
抖音文案
伤感图片
伤感说说:
伤感的句子说说心情
空间说说
心情说说
爱情说说
女生伤感说说
人生感悟
心情不好的说说
说说带图片
关于生活的说说
说说心情短语
qq空间说说带图片
个性说说
励志名言
一句话经典语录
感悟人生的经典句子
短句吧
情感故事
抖音文案
伤感图片:
伤感图片带字
非主流伤感图片
唯美伤感图片
女生伤感图片
唯美意境图片
悲伤的图片
唯美意境伤感图片
只有字的伤感图片
说说图片
伤心的图片
美甲图片
图片大全
情感图片
微信头像男
动态壁纸
动漫配图
伤感图片
首页
>
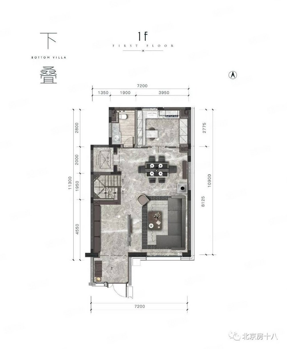
北京和锦薇棠户型图
北京和锦薇棠户型图,和锦薇棠户型图
北京二手房 朝阳二手房 常营二手房 和锦薇棠 1/14
北京房产信息 北京二手房 朝阳二手房 常营二手房 和锦薇棠 00:00
和锦薇棠_和锦薇棠楼盘详情.户型.房价-北京去房网
和锦薇棠4室3厅4卫220㎡南北1326万
北京楼事:朝青板块唯一在售叠墅 首开保利和锦薇棠均价8.8万/平
更多推荐
和锦薇棠户型图
和锦薇棠中叠户型图
锦悦府户型图
锦华府户型图
3房户型图最好户型
同森锦熙户型图
和锦薇棠样板间
同森锦熙三期户型图
城市锦上户型图
界首锦华府户型图
济南锦悦府户型图
西安城市锦上户型图
平阳大诚锦悦府户型图
邯郸美的锦观城户型图
城市锦上9号楼户型图
南充铁投锦华府户型图
户型图图片
户型图图片三室二厅
阜阳界首锦华府户型图
户型图平面图
户型图
户型图一室一厅
大平层户型图
2室户型图
别墅户型图
户型图一室一厅一卫
户型图高清
三室户型图
户型图四室
户型图大全