首页
伤感说说
动漫配图
心情说说
抖音文案
伤感图片
伤感说说:
伤感的句子说说心情
空间说说
心情说说
爱情说说
女生伤感说说
人生感悟
心情不好的说说
说说带图片
关于生活的说说
说说心情短语
qq空间说说带图片
个性说说
励志名言
一句话经典语录
感悟人生的经典句子
短句吧
情感故事
抖音文案
伤感图片:
伤感图片带字
非主流伤感图片
唯美伤感图片
女生伤感图片
唯美意境图片
悲伤的图片
唯美意境伤感图片
只有字的伤感图片
说说图片
伤心的图片
美甲图片
图片大全
情感图片
微信头像男
动态壁纸
动漫配图
伤感图片
首页
>
售楼部平面图高清
售楼部平面图高清,售楼部平面图
营销中心售楼部平面图
▽ 平面图 项目名称:武汉景瑞天赋滨江售楼处 项目地址:湖北 武汉
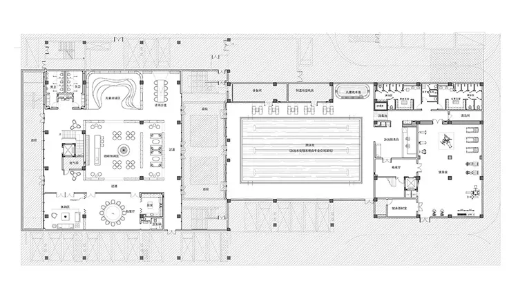
▽售楼处平面图
波斯顿售楼处
和润名门世家售楼处"泉城荷韵"| inhouse设计
更多推荐
售楼部平面图
售楼部设计平面图
售楼部平面图设计方案
售楼部效果图
售楼部效果图外观
售楼部门头效果图
售楼部图片
售楼部内部
故宫平面图高清大图
售楼部内部包装
售楼部门头
售楼部
售楼部设计
售楼部门头设计效果图
售楼部外观
售楼部背景墙
小区平面图
售楼部门头设计
新中式售楼部
售楼部前台
平面图单身公寓
售楼部包装
集装箱售楼部
新中式售楼部外观
平面图
楼梯平面图
房屋平面图
碧桂园售楼部
公园平面图
简单平面图