首页
伤感说说
动漫配图
心情说说
抖音文案
伤感图片
伤感说说:
伤感的句子说说心情
空间说说
心情说说
爱情说说
女生伤感说说
人生感悟
心情不好的说说
说说带图片
关于生活的说说
说说心情短语
qq空间说说带图片
个性说说
励志名言
一句话经典语录
感悟人生的经典句子
短句吧
情感故事
抖音文案
伤感图片:
伤感图片带字
非主流伤感图片
唯美伤感图片
女生伤感图片
唯美意境图片
悲伤的图片
唯美意境伤感图片
只有字的伤感图片
说说图片
伤心的图片
美甲图片
图片大全
情感图片
微信头像男
动态壁纸
动漫配图
伤感图片
首页
>
房子四梁八柱示意图
房子四梁八柱示意图,四合院四梁八柱结构图
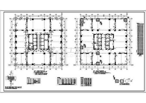
某地四层异形柱框架结构洋房结构施工图
乌鲁木齐市某地商住超高层结构施工图
党的四梁八柱是指什么
房屋结构风水大全图解 房屋结构风水的八大禁忌
古建木构架梁架基本组合形式
更多推荐
四合院四梁八柱结构图
四梁八柱 示意图
四梁八柱 结构图
标准四梁八柱结构图
四梁八柱平图解
古代四梁八柱示意图
四梁八柱平面图
建筑四梁八柱图解
四梁八柱 立体图
建筑四梁八柱示意图
古代建筑四梁八柱图解
建筑四梁八柱结构图
房子四梁八柱结构图
四梁八柱建筑详图
四梁八柱模型
四梁八柱示意图
堂口四梁八柱示意图
仙家的四梁八柱示意图
四梁八柱结构图
四梁八柱图片
四梁八柱立体图
房子冲角示意图
汽车的四梁八柱图解
房子示意图
四梁八柱立堂口排行图
四梁八柱
穿心煞房子示意图
建筑四梁八柱
房子的明堂示意图
房子财位示意图