首页
伤感说说
动漫配图
心情说说
抖音文案
伤感图片
伤感说说:
伤感的句子说说心情
空间说说
心情说说
爱情说说
女生伤感说说
人生感悟
心情不好的说说
说说带图片
关于生活的说说
说说心情短语
qq空间说说带图片
个性说说
励志名言
一句话经典语录
感悟人生的经典句子
短句吧
情感故事
抖音文案
伤感图片:
伤感图片带字
非主流伤感图片
唯美伤感图片
女生伤感图片
唯美意境图片
悲伤的图片
唯美意境伤感图片
只有字的伤感图片
说说图片
伤心的图片
美甲图片
图片大全
情感图片
微信头像男
动态壁纸
动漫配图
伤感图片
首页
>
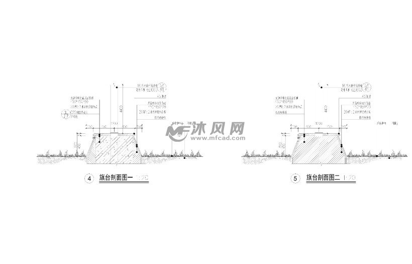
旗台旗杆做法详图
旗台旗杆做法详图,公司旗台图片大全
旗杆旗台完整图
旗台旗杆做法详图
内容简介 旗台旗杆做法详图,包括平面图,正立面图,侧立面图,剖面图一
旗杆旗台cad专题_2019年旗杆旗台cad资料下载
88米高旗杆,旗台建筑施工图
更多推荐
公司旗台图片大全
旗台旗杆效果图
三根旗杆旗台式样图
旗台旗杆施工详图
旗台效果图
旗台标准尺寸
不锈钢旗杆做法详图
三根旗杆的旗台尺寸
旗台样式
旗杆制作详图做法
旗杆制作详图
面包的做法家庭做法
旗杆台子图片
旗杆制作方法
旗杆的制作方法图片
旗杆底座施工图
旗杆旗台
构造详图
女儿墙详图
国旗旗杆底座座台
旗杆绳索安装图解
旗杆图片大全
槐花的吃法与做法
旗杆滑轮安装图片
冷面的做法
旗杆底座图片
楼梯详图
蒜蓉虾的做法
散水构造详图
节点详图