首页
伤感说说
动漫配图
心情说说
抖音文案
伤感图片
伤感说说:
伤感的句子说说心情
空间说说
心情说说
爱情说说
女生伤感说说
人生感悟
心情不好的说说
说说带图片
关于生活的说说
说说心情短语
qq空间说说带图片
个性说说
励志名言
一句话经典语录
感悟人生的经典句子
短句吧
情感故事
抖音文案
伤感图片:
伤感图片带字
非主流伤感图片
唯美伤感图片
女生伤感图片
唯美意境图片
悲伤的图片
唯美意境伤感图片
只有字的伤感图片
说说图片
伤心的图片
美甲图片
图片大全
情感图片
微信头像男
动态壁纸
动漫配图
伤感图片
首页
>
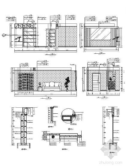
室内设计详图
室内设计详图,室内设计图
cad室内设计详图源文件
日式套房设计详图-室内节点详图-筑龙室内设计论坛
装潢空间设计大样,墙纸与石膏板收口节点,壁纸与幕墙收口详图,背景墙
分享室内设计大样大样图资料下载
某酒店双人标房cad室内设计装修详图
更多推荐
室内设计图
室内设计局部详图
室内设计节点详图
室内设计图片
室内设计卧室
室内设计平面图
室内设计图简单
室内设计图透视图
室内设计效果图
室内设计
室内设计现代
建筑室内设计
室内详图
室内设计图手绘平面图
室内设计节点详图手绘
室内设计手绘图
室内设计展板
室内设计手绘
楼梯设计图与尺寸详图
墙体构造设计详图
室内装修节点详图
室内设计效果图手绘
室内设计欧式风格
室内设计功能分区图
室内设计图马克笔
室内设计中式风格
儿童房间室内设计
儿童房间室内设计图片
室内设计简笔画
儿童房间室内设计女生