首页
伤感说说
动漫配图
心情说说
抖音文案
伤感图片
伤感说说:
伤感的句子说说心情
空间说说
心情说说
爱情说说
女生伤感说说
人生感悟
心情不好的说说
说说带图片
关于生活的说说
说说心情短语
qq空间说说带图片
个性说说
励志名言
一句话经典语录
感悟人生的经典句子
短句吧
情感故事
抖音文案
伤感图片:
伤感图片带字
非主流伤感图片
唯美伤感图片
女生伤感图片
唯美意境图片
悲伤的图片
唯美意境伤感图片
只有字的伤感图片
说说图片
伤心的图片
美甲图片
图片大全
情感图片
微信头像男
动态壁纸
动漫配图
伤感图片
首页
>
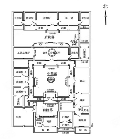
四合院平面图
四合院平面图,小四合院图
四合院国人心之向往精选三套经典四合院设计图纸建房可参考
北京四合院别墅设计如何带花园设计
新中式徽派北京四合院祠堂江南古典建筑民宿庭院客栈
平面图丨北京四合院 北京四合院——大门
后海银锭桥出门见海正座四合院出售
更多推荐
小四合院图
北京四合院布局图
四合院花园
三进四合院 平面图
中式四合院 平面图
四合院平面图现代
四合院二进院
日本四合院
四合院园林平面图
四合院户型平面图
王府设计图
四合院cad平面图
四合院民宿平面图
清朝四合院平面图
一层四合院设计图纸
四合院设计 中式
四合院构造图
四合院尺寸平面图
标准四合院
四合院设计图
北京故宫图片 平面图
四合院简笔画 简单
四合院房檐
四合院设计图纸
四合院老房子
上海弄堂平面图
四合院的平面设计图
四合院凉亭
一品大臣四合院平面图
古代四进四合院平面图