首页
伤感说说
动漫配图
心情说说
抖音文案
伤感图片
伤感说说:
伤感的句子说说心情
空间说说
心情说说
爱情说说
女生伤感说说
人生感悟
心情不好的说说
说说带图片
关于生活的说说
说说心情短语
qq空间说说带图片
个性说说
励志名言
一句话经典语录
感悟人生的经典句子
短句吧
情感故事
抖音文案
伤感图片:
伤感图片带字
非主流伤感图片
唯美伤感图片
女生伤感图片
唯美意境图片
悲伤的图片
唯美意境伤感图片
只有字的伤感图片
说说图片
伤心的图片
美甲图片
图片大全
情感图片
微信头像男
动态壁纸
动漫配图
伤感图片
首页
>
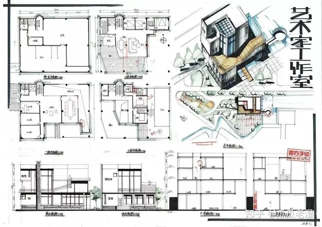
建筑快题纸张大小
建筑快题纸张大小,小型建筑快题设计
纸张大小:a1绘图工具:马克笔,彩铅,橡皮等自带苏州科技大学近七年快题
快题灵感第01期丨建筑设计手绘快题抄绘灵感素材
纸张大小:a1绘图纸绘图工具:马克笔,彩铅,橡皮等自带华中科技大学建筑
考试时间:6小时纸张大小:a1绘图纸绘图工具:马克笔,彩铅,橡皮等自带
华南理工大学建筑考研:学长快题113,总分358.96!他说很简单!
更多推荐
小型建筑快题设计
建筑快题
建筑快题是什么
建筑快题效果图
建筑快题设计
建筑快题优秀作品
各类纸张大小
建筑快题设计高清
纸张大小规格
建筑快题手绘
建筑快题设计手绘
建筑快题黑白灰
建筑快题设计案例
建筑快题设计效果图
a2纸张大小
纸张大小规格图片
各种纸张尺寸大小图
纸张大小规格对照图
建筑快题设计100例
a5纸张大小
纸张大小规格对照表
a3纸张大小图片
建筑快题马克笔
a纸张大小规格对照表
手抄报纸张大小
建筑快题设计手绘高清
建筑快题设计高分作品
建筑快题设计100例高清
a4a5b5纸张大小对比
纸张尺寸对照表