首页
伤感说说
动漫配图
心情说说
抖音文案
伤感图片
伤感说说:
伤感的句子说说心情
空间说说
心情说说
爱情说说
女生伤感说说
人生感悟
心情不好的说说
说说带图片
关于生活的说说
说说心情短语
qq空间说说带图片
个性说说
励志名言
一句话经典语录
感悟人生的经典句子
短句吧
情感故事
抖音文案
伤感图片:
伤感图片带字
非主流伤感图片
唯美伤感图片
女生伤感图片
唯美意境图片
悲伤的图片
唯美意境伤感图片
只有字的伤感图片
说说图片
伤心的图片
美甲图片
图片大全
情感图片
微信头像男
动态壁纸
动漫配图
伤感图片
首页
>
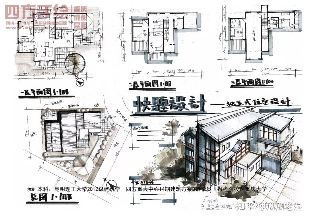
建筑快题图纸
建筑快题图纸,建筑快题效果图
深大复试快题状元师姐高能图纸大合集!
建筑考研,建筑快题
2号图纸绘图工具:马克笔,彩铅,橡皮等自带华南理工大学近十六年快题
武汉大学高分快题作品
建筑快题设计作品
更多推荐
建筑快题效果图
建筑快题
建筑快题设计
建筑快题手绘
建筑图纸
建筑快题是什么
建筑快题设计效果图
建筑快题设计高清
建筑快题黑白灰
建筑快题设计案例
小型建筑快题设计
建筑快题设计手绘
建筑快题优秀作品
建筑快题设计100例
建筑快题马克笔
图纸效果图
建筑快题设计手绘高清
建筑快题设计100例高清
自建房图纸大全图册
建筑快题设计高分作品
建筑效果图手绘
徽派建筑
图纸图案
建筑抄绘
建筑
图纸设计
景观快题
景观快题设计
快题设计模板
快题设计