首页
伤感说说
动漫配图
心情说说
抖音文案
伤感图片
伤感说说:
伤感的句子说说心情
空间说说
心情说说
爱情说说
女生伤感说说
人生感悟
心情不好的说说
说说带图片
关于生活的说说
说说心情短语
qq空间说说带图片
个性说说
励志名言
一句话经典语录
感悟人生的经典句子
短句吧
情感故事
抖音文案
伤感图片:
伤感图片带字
非主流伤感图片
唯美伤感图片
女生伤感图片
唯美意境图片
悲伤的图片
唯美意境伤感图片
只有字的伤感图片
说说图片
伤心的图片
美甲图片
图片大全
情感图片
微信头像男
动态壁纸
动漫配图
伤感图片
首页
>
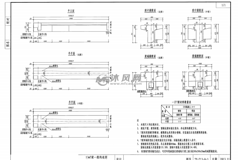
T梁部位识图
T梁部位识图,T型梁构造图
直线桥35米预应力连续t梁通用图30张 - autocad路桥
13m,16m装配式预应力简支矮t梁通用设计图150张
[安徽]1x20米后张预应力简支t梁桥施工图31张-路
装配式预应力混凝土t梁桥先简支后结构连续上部构造通
跨铁路桥45m钢筋混凝土t梁设计施工图(56张)
更多推荐
T型梁构造图
T梁图解
t梁支座图片
t梁各部位名称示意图
钢箱梁结构详解图
t型梁
t梁钢筋构造图
T梁腹板和翼板示意图
t梁结构图部位名称
箱梁部位识图
t梁结构部位名称
t梁图片
T型梁立体图
t梁结构图示意图
T梁一般构造图
桥梁t梁结构示意图
桥梁各部位名称图解ppt
T梁一般构造图讲解
t梁部位名称图解
t型梁图解
t梁图纸详解图
t梁各部位名称图片
t型梁各部位名称
T梁部位识图
t梁各部位名称图解
桥梁t梁图片
t梁和箱梁的图片
t型梁结构图
t梁一般构造图
面部美容部位图解