首页
伤感说说
动漫配图
心情说说
抖音文案
伤感图片
伤感说说:
伤感的句子说说心情
空间说说
心情说说
爱情说说
女生伤感说说
人生感悟
心情不好的说说
说说带图片
关于生活的说说
说说心情短语
qq空间说说带图片
个性说说
励志名言
一句话经典语录
感悟人生的经典句子
短句吧
情感故事
抖音文案
伤感图片:
伤感图片带字
非主流伤感图片
唯美伤感图片
女生伤感图片
唯美意境图片
悲伤的图片
唯美意境伤感图片
只有字的伤感图片
说说图片
伤心的图片
美甲图片
图片大全
情感图片
微信头像男
动态壁纸
动漫配图
伤感图片
首页
>
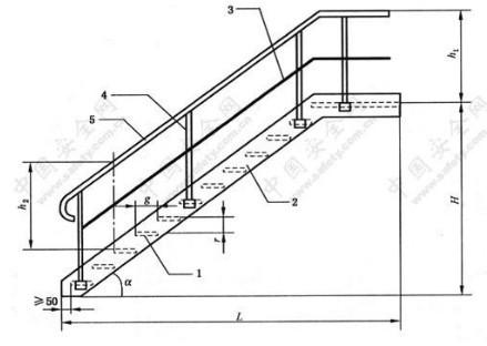
槽钢楼梯放样图 图纸
槽钢楼梯放样图 图纸,楼梯踏步简单计算公式
钢楼梯结构详图
想用160mm宽,长930mm的槽钢做楼梯,怎样测量计算
番禺钢结构阁楼搭建,钢结构楼梯踏步厚度,20年设计施工经验
请问做铁楼梯两边槽钢到转向台斜下来是3.42米这个3.
山东钢格板临/清钢梯踏步板/热镀锌踏步板/楼梯踏步板
更多推荐
楼梯踏步简单计算公式
槽钢楼梯放样图
槽钢楼梯计算公式图解
楼梯斜长计算公式图解
槽钢楼梯放样图图纸
45度槽钢楼梯放样图
160槽钢做楼梯放样图
钢楼梯放样的方法图
钢结构楼梯制作放样图
槽钢楼梯踏步图
旋转楼梯现场放样图
弧形楼梯放样的方法图
斜楼梯放样的老方法图
旋转楼梯放样
弯头放样图
槽钢层示意图
保温弯头放样图解
90度弯头放样图
放样图
弯头放样图方法
槽钢结构图
保温铝皮弯头放样图解
手工钣金放样展开图
槽钢层图片
虾米弯头放样步骤图
不锈钢槽钢
大小口漏斗放样展开图
90度4节弯头放样图解
天圆地方手工的放样图
施工放样