首页
伤感说说
动漫配图
心情说说
抖音文案
伤感图片
伤感说说:
伤感的句子说说心情
空间说说
心情说说
爱情说说
女生伤感说说
人生感悟
心情不好的说说
说说带图片
关于生活的说说
说说心情短语
qq空间说说带图片
个性说说
励志名言
一句话经典语录
感悟人生的经典句子
短句吧
情感故事
抖音文案
伤感图片:
伤感图片带字
非主流伤感图片
唯美伤感图片
女生伤感图片
唯美意境图片
悲伤的图片
唯美意境伤感图片
只有字的伤感图片
说说图片
伤心的图片
美甲图片
图片大全
情感图片
微信头像男
动态壁纸
动漫配图
伤感图片
首页
>
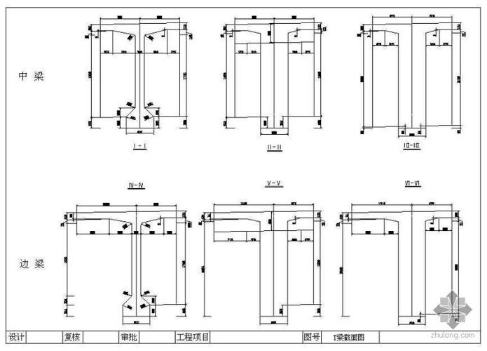
t型梁结构示意图
t型梁结构示意图,T梁部位识图
预应力混凝土t形连续梁桥上部设计说明
预应力钢筋混凝土t梁横断面构造节点详图设计
运梁车稳固措施示意图
[分享]t梁40模板资料下载
一种混凝土t型梁制造技术
更多推荐
T梁部位识图
梁柱核心区箍筋示意图
T梁腹板和翼板示意图
t型梁结构图
t梁各部位名称示意图
桥梁t梁结构示意图
T型梁结构示意图
t型梁截面示意图
子宫图结构示意图
楼梯平台梁结构示意图
t梁一般构造图
原子结构示意图
花的结构示意图
梯梁和平台梁示意图
连续梁示意图
人体肌肉结构图示意图
T梁一般构造图
t梁腹板和翼板示意图
T梁结构
四梁六柱示意图
t梁图纸详解图
梁的受力情况示意图
横隔梁示意图
梁板支模示意图
t型梁桥实物图
t型梁图解
人体结构示意图器官
简支梁和连续梁的图片
T型梁图片
t型梁图片大全