首页
伤感说说
动漫配图
心情说说
抖音文案
伤感图片
伤感说说:
伤感的句子说说心情
空间说说
心情说说
爱情说说
女生伤感说说
人生感悟
心情不好的说说
说说带图片
关于生活的说说
说说心情短语
qq空间说说带图片
个性说说
励志名言
一句话经典语录
感悟人生的经典句子
短句吧
情感故事
抖音文案
伤感图片:
伤感图片带字
非主流伤感图片
唯美伤感图片
女生伤感图片
唯美意境图片
悲伤的图片
唯美意境伤感图片
只有字的伤感图片
说说图片
伤心的图片
美甲图片
图片大全
情感图片
微信头像男
动态壁纸
动漫配图
伤感图片
首页
>
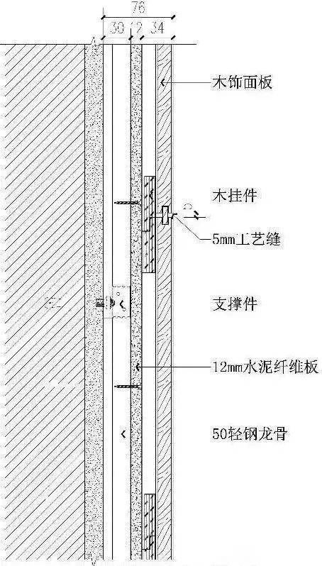
木饰面板施工工艺
木饰面板施工工艺,墙面木饰面板施工工艺
超详细的常见木饰面安装工艺
室内设计施工工艺058解决木饰面的所有收口问题看这一篇就够了
6种木饰面板的节点做法,看这一篇就够了!
施工工序准备工作-现场放线-材料加工-基层处理-木饰面基础固定
u形工艺缝拼接:3,在拼接两块木饰面板时,主要是采用"留缝"和"对撞"的
更多推荐
墙面木饰面板施工工艺
墙面饰面板施工工艺
饰面板施工工艺
洁净板施工工艺
木饰面板
木饰面板装修
木饰面板效果图
木饰面板厂家
木饰面板种类
免漆木饰面板
木饰面板背景墙
饰面板工程
朗生木饰面板
铝单板施工工艺流程
木饰面板价格
木饰面墙板
科技木饰面板
防火板饰面板
屋面r角施工工艺
水曲柳木饰面板
尼斯木饰面板
影木饰面板效果图
施工工艺
夯土墙施工工艺
枫木饰面板
木饰面板装修效果图
外墙饰面板
饰面板
铝模板施工工艺流程
木饰面板电视背景墙