首页
伤感说说
动漫配图
心情说说
抖音文案
伤感图片
伤感说说:
伤感的句子说说心情
空间说说
心情说说
爱情说说
女生伤感说说
人生感悟
心情不好的说说
说说带图片
关于生活的说说
说说心情短语
qq空间说说带图片
个性说说
励志名言
一句话经典语录
感悟人生的经典句子
短句吧
情感故事
抖音文案
伤感图片:
伤感图片带字
非主流伤感图片
唯美伤感图片
女生伤感图片
唯美意境图片
悲伤的图片
唯美意境伤感图片
只有字的伤感图片
说说图片
伤心的图片
美甲图片
图片大全
情感图片
微信头像男
动态壁纸
动漫配图
伤感图片
首页
>
青岛北站一楼平面图
青岛北站一楼平面图,青岛北站平面图
2017中国国际教育展参观指南,平面图:每个观众都该看!
高铁青岛北站地下商业空间规划图 2011年深圳新摩尔公司
青岛国际车展室外平面图
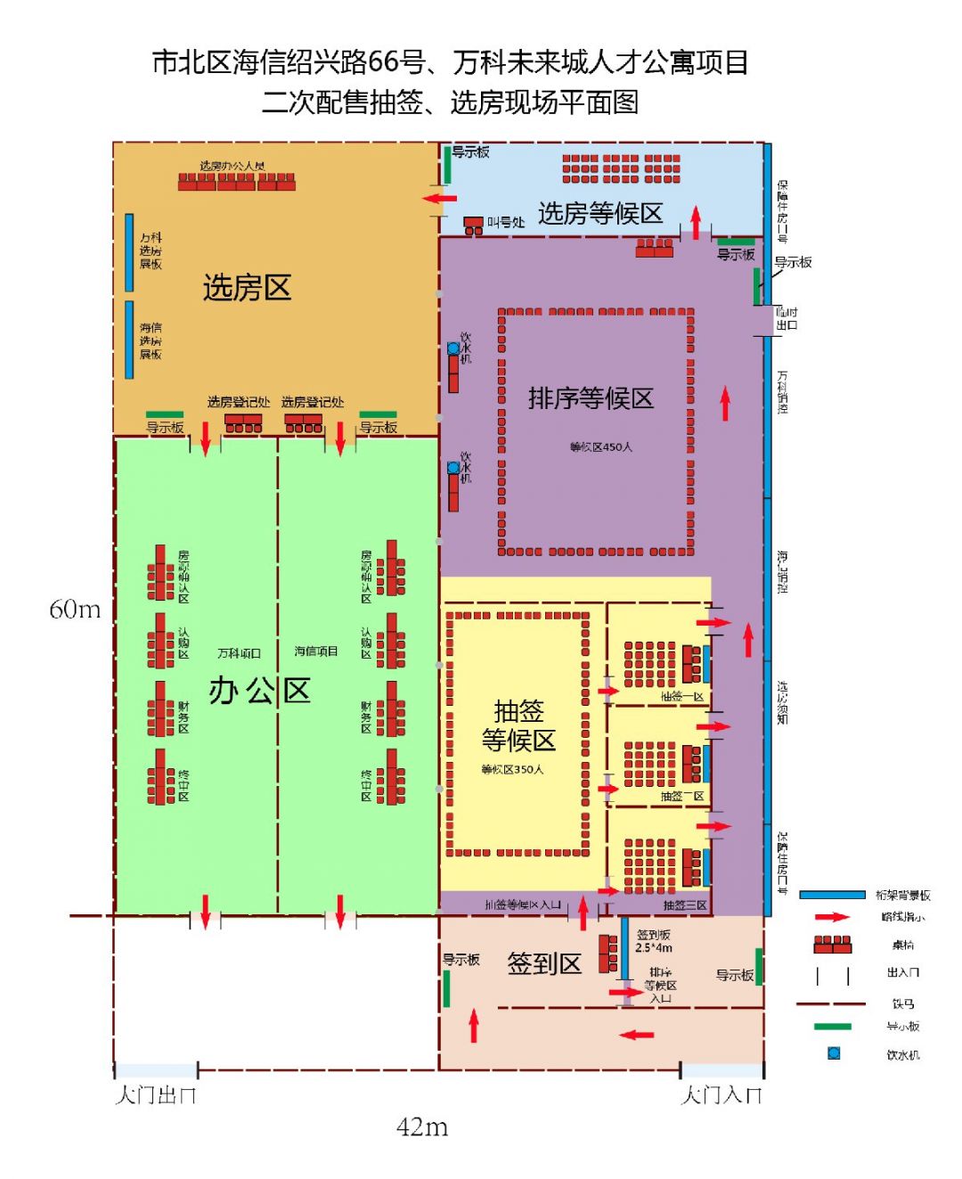
2019青岛市北海信绍兴路66号,万科未来城人才公寓抽签选房平面图
重要通知 | 青岛缝制设备展展商报到,搭建工作通知
更多推荐
青岛北站平面图
青岛北站内部平面图
青岛北站平面示意图
青岛火车北站平面图
青岛站进站口平面图
青岛北站候车厅平面图
厦门北站出站口平面图
青岛北站站台分布图
青岛北站出站口图片
青岛北站布局图
青岛北站实景图
青岛北站示意图
青岛北站内部示意图
青岛北站内部布局图
重庆北站平面图
青岛北站出口示意图
青岛北站内部结构图
厦门北站平面图
青岛北站图片
贵阳北站平面图
青岛北站内部地图
青岛北站检票口图片
青岛北站检票口分布图
青岛中山公园平面图
青岛北站内换乘示意图
贵阳北站内部平面图
青岛动物园平面图
青岛北站西广场
青岛北站内部全景图片
西安北站检票口平面图