首页
伤感说说
动漫配图
心情说说
抖音文案
伤感图片
伤感说说:
伤感的句子说说心情
空间说说
心情说说
爱情说说
女生伤感说说
人生感悟
心情不好的说说
说说带图片
关于生活的说说
说说心情短语
qq空间说说带图片
个性说说
励志名言
一句话经典语录
感悟人生的经典句子
短句吧
情感故事
抖音文案
伤感图片:
伤感图片带字
非主流伤感图片
唯美伤感图片
女生伤感图片
唯美意境图片
悲伤的图片
唯美意境伤感图片
只有字的伤感图片
说说图片
伤心的图片
美甲图片
图片大全
情感图片
微信头像男
动态壁纸
动漫配图
伤感图片
首页
>
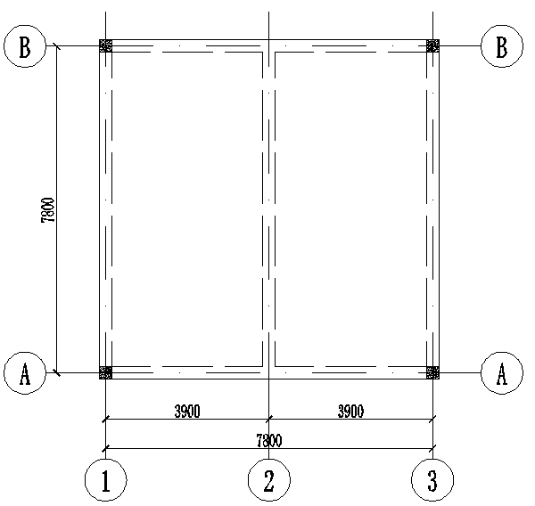
板平法施工图标注详解
板平法施工图标注详解,钢筋平法标注
二,梁平法施工图
第七期:独立基础平法施工图的表示方法
建筑结构与抗震全套配套课件陈文元板平法施工图 ppt
根据板平法施工图画出对应的传统施工图.
平法施工图ppt 上一页第4页 下一页 你可能喜欢 板钢筋平法标注图解
更多推荐
钢筋平法标注
现浇板平法施工图识读
梁平法施工图
板平法
怎样看懂梁平法施工图
板平法施工图图解说明
板的原位标注图解
板平法施工图识图
板的平法标注图解
板平法施工图钢筋图解
梁平法集中标注图解
梁平法施工图标注详解
板平法施工图
楼板平法标注图解
梁平法施工图钢筋图解
板配筋图标注详解
板筋标注图纸图解
板配筋图平面图详解
梁钢筋平面标注法图解
平法梁钢筋标注图解
梁的平法标注图解
柱钢筋平法标注图解
平法标注图解
梁平法标注详解
梁钢筋平法标注识图
板的集中标注图解
板平法标注
钢筋平法识图图例讲解
建筑施工图纸平面图
平面施工图