首页
伤感说说
动漫配图
心情说说
抖音文案
伤感图片
伤感说说:
伤感的句子说说心情
空间说说
心情说说
爱情说说
女生伤感说说
人生感悟
心情不好的说说
说说带图片
关于生活的说说
说说心情短语
qq空间说说带图片
个性说说
励志名言
一句话经典语录
感悟人生的经典句子
短句吧
情感故事
抖音文案
伤感图片:
伤感图片带字
非主流伤感图片
唯美伤感图片
女生伤感图片
唯美意境图片
悲伤的图片
唯美意境伤感图片
只有字的伤感图片
说说图片
伤心的图片
美甲图片
图片大全
情感图片
微信头像男
动态壁纸
动漫配图
伤感图片
首页
>
室内cad节点图
室内cad节点图,节点图cad放大图
铺砖用金属条收边,颜值爆表!【附节点做法】
[分享]节点cad大样图资料下载
99设计师都需要的楼梯cad节点详图合集
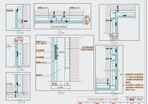
超值分享!室内石材地面墙面常见节点cad图
[分享]cad节点祥图资料下载
更多推荐
节点图cad放大图
cad节点图
室内平面图cad图纸
cad天花节点图
cad墙面节点图
cad吊顶节点图
cad节点详图
cad节点大样图
cad节点图库
cad节点图怎么画
室内节点大样图
cad室内设计图
室内节点图怎么画
cad室内平面图简单
cad节点
cad室内设计图纸
cad图纸平面图
cad室内设计立面图
室内节点大样图高清
CAD室内图
CAD室内平面图
cad节点大样图规范
cad吊顶节点图怎么画
室内设计平面图cad
新手cad节点图怎么画
cad节点大样图怎么画
cad画节点大样图步骤
cad图纸图片
cad图中节点的表示方式
cad图纸户型图