首页
伤感说说
动漫配图
心情说说
抖音文案
伤感图片
伤感说说:
伤感的句子说说心情
空间说说
心情说说
爱情说说
女生伤感说说
人生感悟
心情不好的说说
说说带图片
关于生活的说说
说说心情短语
qq空间说说带图片
个性说说
励志名言
一句话经典语录
感悟人生的经典句子
短句吧
情感故事
抖音文案
伤感图片:
伤感图片带字
非主流伤感图片
唯美伤感图片
女生伤感图片
唯美意境图片
悲伤的图片
唯美意境伤感图片
只有字的伤感图片
说说图片
伤心的图片
美甲图片
图片大全
情感图片
微信头像男
动态壁纸
动漫配图
伤感图片
首页
>
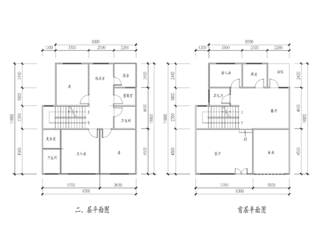
二层楼房设计平面图
二层楼房设计平面图,二层楼平面图设计图纸
农村自建房子二层楼怎么设计才好看,像这样建绝对大气
新农村80平米二层房屋设计图纸,精简户型,地方不大也能合理规划
二层平面图
户型四:100平米左右新农村二层房屋设计图纸,带外观图和效果图
长12米,宽9米的二层楼房设计图纸.
更多推荐
二层楼平面图设计图纸
二层楼房设计图
上下两层楼的平面图
二楼房子设计图平面图
一二层平面图
二层房屋平面设计图
楼房平面图图片
二层别墅平面图
小别墅设计图二层
楼房二层设计图片大全
楼房设计平面图
二层楼房室内设计图
设计房子平面图农村
图纸设计平面图
二层楼房设计
教学楼设计平面图
楼房设计图
楼房设计效果图
农村二层楼房设计
平面图设计
三层楼房设计图片大全
室内设计平面图
楼房外观设计效果图
楼房顶设计效果图
广场设计平面图
城市设计平面图
楼房设计三层
茶室设计平面图
办公空间设计平面图
餐厅设计平面图