首页
伤感说说
动漫配图
心情说说
抖音文案
伤感图片
伤感说说:
伤感的句子说说心情
空间说说
心情说说
爱情说说
女生伤感说说
人生感悟
心情不好的说说
说说带图片
关于生活的说说
说说心情短语
qq空间说说带图片
个性说说
励志名言
一句话经典语录
感悟人生的经典句子
短句吧
情感故事
抖音文案
伤感图片:
伤感图片带字
非主流伤感图片
唯美伤感图片
女生伤感图片
唯美意境图片
悲伤的图片
唯美意境伤感图片
只有字的伤感图片
说说图片
伤心的图片
美甲图片
图片大全
情感图片
微信头像男
动态壁纸
动漫配图
伤感图片
首页
>
玻璃怎么安装
玻璃怎么安装,玻璃安装图片
玻璃安装
玻璃隔断施工工艺要点是什么,怎么进行安装呢
隐框及半隐框玻璃幕墙安装工艺
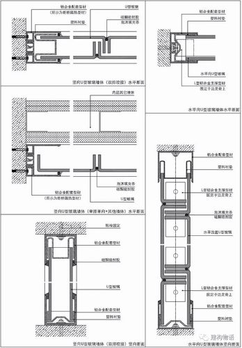
典型的u型玻璃安装示意
安装隐框玻璃幕墙固定玻璃是怎么固定?(无副框的)
更多推荐
玻璃安装图片
玻璃顶安装图解
玻璃安装方式
安装玻璃窗
玻璃安装机
玻璃安装设备
玻璃爪件怎么安装图片
玻璃安装
玻璃扶手卡槽底座
6米超大玻璃安装
玻璃扶手安装
玻璃栏杆安装
玻璃茶几安装
安装玻璃门窗
玻璃锁怎么安装图片
玻璃挡烟垂壁怎么安装
玻璃扶手安装图解
玻璃安装节点详图
玻璃钢化门推门安装
玻璃
玻璃扶手
玻璃驳接爪安装工序图
马桶盖怎么安装
风筝怎么安装
玻璃栏杆
净水器怎么安装
热水器怎么安装
玻璃门
lowe玻璃
安装