首页
伤感说说
动漫配图
心情说说
抖音文案
伤感图片
伤感说说:
伤感的句子说说心情
空间说说
心情说说
爱情说说
女生伤感说说
人生感悟
心情不好的说说
说说带图片
关于生活的说说
说说心情短语
qq空间说说带图片
个性说说
励志名言
一句话经典语录
感悟人生的经典句子
短句吧
情感故事
抖音文案
伤感图片:
伤感图片带字
非主流伤感图片
唯美伤感图片
女生伤感图片
唯美意境图片
悲伤的图片
唯美意境伤感图片
只有字的伤感图片
说说图片
伤心的图片
美甲图片
图片大全
情感图片
微信头像男
动态壁纸
动漫配图
伤感图片
首页
>
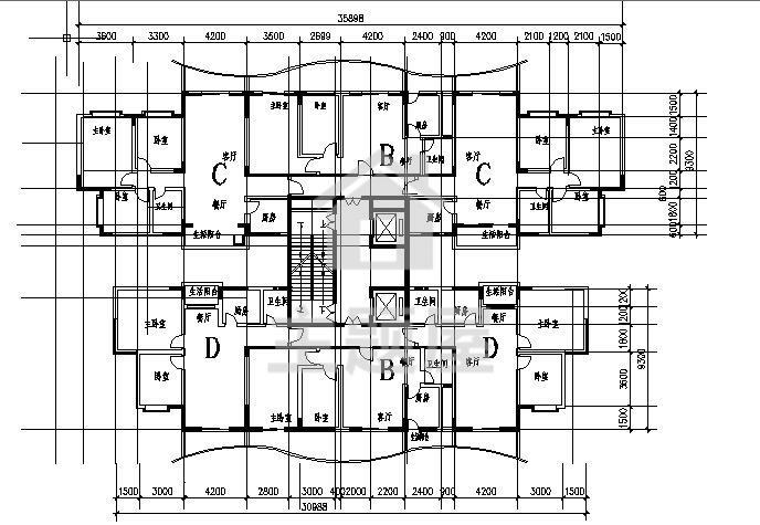
两梯六户户型平面图
两梯六户户型平面图,两梯四户户型平面图
调整后的项目一期两梯六户户型产业项目案例这是一个来自酒乡贵州的
楼层平面图
该平面图为 2梯4户,边户与中间户户型不同.
一梯六户,高层,90-130㎡图纸
77 ㎡ /1房2厅2卫03/04室77-92㎡ /1房2厅2卫一梯六户,原始户型为客厅
更多推荐
两梯四户户型平面图
两梯六户平面图
一梯两户平面图
两梯六户的房子户型图
两梯四户平面图
两梯四户最新户型图
两梯四户常见户型图
一梯两户户型图
经典一梯两户户型图
两梯四户最好的户型图
两梯四户连廊平面图
两梯四户100种户型图
两梯四户全通透户型图
一梯三户平面图
一梯四户户型图
一梯三户户型图
一梯一户户型图
一梯两户最好的户型图
三梯四户户型分布图
两梯四户户型
两梯四户最好的户型
两梯四户标准层平面图
一梯两户户型
一梯一户户型
两梯四户电梯口实景图
两梯四户连廊实景图
两梯四户入户门图片
一梯一户电梯口实景图
楼梯平面图
两梯四户入户门口实图