首页
伤感说说
动漫配图
心情说说
抖音文案
伤感图片
伤感说说:
伤感的句子说说心情
空间说说
心情说说
爱情说说
女生伤感说说
人生感悟
心情不好的说说
说说带图片
关于生活的说说
说说心情短语
qq空间说说带图片
个性说说
励志名言
一句话经典语录
感悟人生的经典句子
短句吧
情感故事
抖音文案
伤感图片:
伤感图片带字
非主流伤感图片
唯美伤感图片
女生伤感图片
唯美意境图片
悲伤的图片
唯美意境伤感图片
只有字的伤感图片
说说图片
伤心的图片
美甲图片
图片大全
情感图片
微信头像男
动态壁纸
动漫配图
伤感图片
首页
>
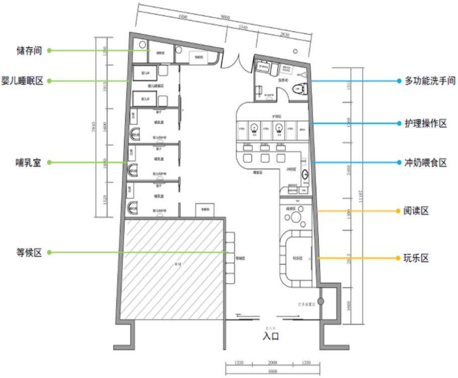
公共厕所母婴室平面图
公共厕所母婴室平面图,公共厕所平面图立面图
母婴室最注重安全问题,所以内部装修里的厕所应做好防水防滑措施
小公共卫生间设计平面图
相比传统公共场所母婴室,深圳机场旗舰体验式母婴室具有设计更人性化
大型商场母婴设施较贴心 公共场所"槽点"多多
母婴室
更多推荐
公共厕所平面图立面图
公共厕所设计图平面图
公园公共厕所平面图
公共厕所平面图
小型公共厕所平面图
公共厕所设计平面图
公共厕所平面图画法
母婴室设计平面图
公共厕所cad平面图
公共厕所立面图
公共厕所剖面图
公厕设计平面图效果图
公共厕所设计图
公共厕所效果图
厕所平面图
公共厕所设计效果图
公共卫生间尺寸平面图
公共厕所图片
公共厕所布局
公共厕所设计
公共厕所隔断板
公共厕所图片卡通
小型公共厕所设计
公共厕所标志图片
公共厕所快题设计
公共厕所门
公共厕所图片简笔画
公共厕所设计手绘
公共厕所手绘
公共厕所尺寸