首页
伤感说说
动漫配图
心情说说
抖音文案
伤感图片
伤感说说:
伤感的句子说说心情
空间说说
心情说说
爱情说说
女生伤感说说
人生感悟
心情不好的说说
说说带图片
关于生活的说说
说说心情短语
qq空间说说带图片
个性说说
励志名言
一句话经典语录
感悟人生的经典句子
短句吧
情感故事
抖音文案
伤感图片:
伤感图片带字
非主流伤感图片
唯美伤感图片
女生伤感图片
唯美意境图片
悲伤的图片
唯美意境伤感图片
只有字的伤感图片
说说图片
伤心的图片
美甲图片
图片大全
情感图片
微信头像男
动态壁纸
动漫配图
伤感图片
首页
>
300平户型图
300平户型图,200平户型图
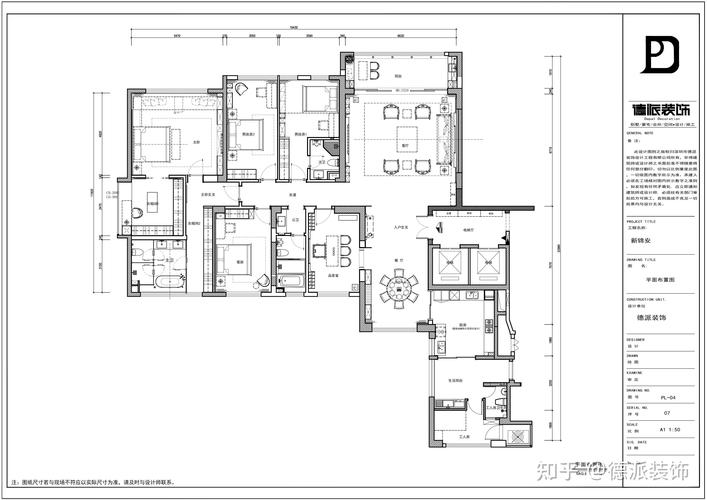
以下就是本套橡逸湾小区300平米四居室房子的户型图.
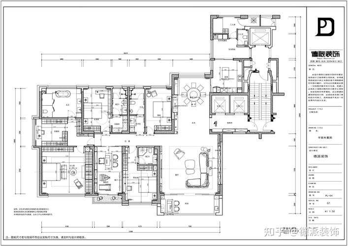
深圳新锦安壹号公馆装修案例户型图300平现代轻奢新房装修一站式整装
以下就是本套御河上院小区300平米复式房子的户型图.
深圳新锦安壹号公馆,装修案例,户型图300平,新中式,新房装修,一站式整
枫丹丽舍300平米法式风格装修——四层户型平面布置结构图
更多推荐
200平户型图
300平大平层户型图
300大平层户型图片欣赏
500平米大平层户型图
300平米平层户型图
300平米户型图
户型图平面图
3房户型图最好户型
200平米户型图
300平米大平层户型图
350平大平层户型图
300平米大户型平面图
200平米大平层户型图
大平层户型图
300平米最佳户型图
农村300平米平层户型图
一层300平米户型图
户型图图片
350平米大平层户型图
500平大平层豪宅户型图
一梯一户大平层户型图
200平最完美户型图
户型图
一层300平米户型图6房
户型图一室一厅
300平大平层
300平米大平层户型布局
户型图四室
别墅户型图
三室户型图