首页
伤感说说
动漫配图
心情说说
抖音文案
伤感图片
伤感说说:
伤感的句子说说心情
空间说说
心情说说
爱情说说
女生伤感说说
人生感悟
心情不好的说说
说说带图片
关于生活的说说
说说心情短语
qq空间说说带图片
个性说说
励志名言
一句话经典语录
感悟人生的经典句子
短句吧
情感故事
抖音文案
伤感图片:
伤感图片带字
非主流伤感图片
唯美伤感图片
女生伤感图片
唯美意境图片
悲伤的图片
唯美意境伤感图片
只有字的伤感图片
说说图片
伤心的图片
美甲图片
图片大全
情感图片
微信头像男
动态壁纸
动漫配图
伤感图片
首页
>
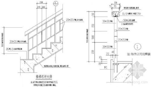
楼梯节点大样图
楼梯节点大样图,楼梯节点详图
[分享]精装修工程细部节点构造施工示意图,就是这么全!
高层建筑施工图-公共部位楼梯及靠墙扶手节点详图
普通楼梯节点详图(23张),特殊楼梯节点详图(65张),栏杆大样节点详图(9
栏杆大样节点详图 楼梯建筑构造节点详图 建筑设计
某钢楼梯大样节点构造详图
更多推荐
楼梯节点详图
楼梯详图
楼梯大样图
楼梯扶手节点大样图
踏步剖面图
楼梯踏步节点详图
楼梯大样图图解
节点大样图效果图
窗户节点大样图
吊顶节点大样图
室内节点大样图
楼梯踏步大样图
衣柜节点大样图
墙身节点大样图
节点大样图
景观节点大样图
天花节点大样图
节点图和大样图区别
节点大样图清晰
节点大样图手绘
节点大样图怎么看
楼梯节点详图高清
节点大样图怎么画
室内节点大样图高清
折板楼梯配筋大样图
如何看懂节点大样图
节点大样
楼梯起步做法大样图
楼梯剖面图
楼梯立面图