首页
伤感说说
动漫配图
心情说说
抖音文案
伤感图片
伤感说说:
伤感的句子说说心情
空间说说
心情说说
爱情说说
女生伤感说说
人生感悟
心情不好的说说
说说带图片
关于生活的说说
说说心情短语
qq空间说说带图片
个性说说
励志名言
一句话经典语录
感悟人生的经典句子
短句吧
情感故事
抖音文案
伤感图片:
伤感图片带字
非主流伤感图片
唯美伤感图片
女生伤感图片
唯美意境图片
悲伤的图片
唯美意境伤感图片
只有字的伤感图片
说说图片
伤心的图片
美甲图片
图片大全
情感图片
微信头像男
动态壁纸
动漫配图
伤感图片
首页
>
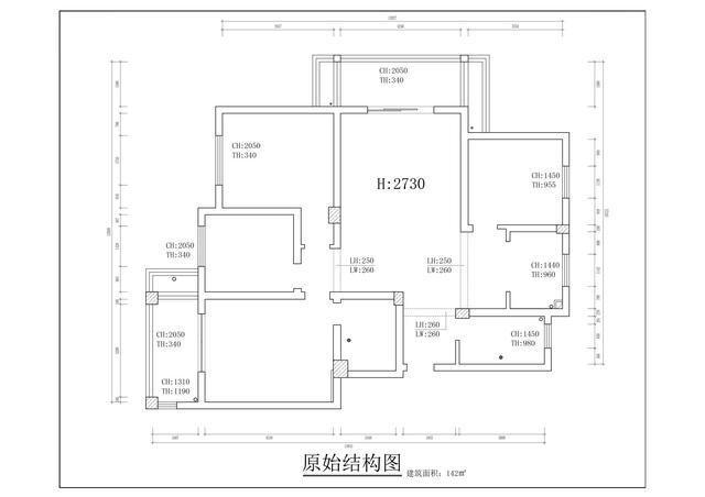
三房改四房平面图案例
三房改四房平面图案例,三室两厅改成四室两厅
平面方案,三房改四房,提高家里的居住条件.
新房装修 小户型三房改四房及平面布置图
三房设计四房,左侧为主人房,需要衣帽间.
100㎡三房改四房,还要大气开阔住的舒服,能做到吗?
140㎡的四房改三房,舒适惬意的生活
更多推荐
三室两厅改成四室两厅
三室改四室隔断图片
三房变四房户型改造图
三房改四房设计图
三室改四室
三室改四室图片效果图
适合三室改四室户型
房屋平面图
小区平面图
室内平面图
平面图单身公寓
平面图
楼梯平面图
景观平面图
室内设计平面图
建筑平面图
餐厅平面图
简单平面图
公园平面图
故宫平面图高清大图
景观平面图手绘
平面图设计手绘
平面图手绘
学校平面图
幼儿园平面图
平面图制作
平面图怎么画
cad平面图
故宫平面图
平面图怎么画手绘