首页
伤感说说
动漫配图
心情说说
抖音文案
伤感图片
伤感说说:
伤感的句子说说心情
空间说说
心情说说
爱情说说
女生伤感说说
人生感悟
心情不好的说说
说说带图片
关于生活的说说
说说心情短语
qq空间说说带图片
个性说说
励志名言
一句话经典语录
感悟人生的经典句子
短句吧
情感故事
抖音文案
伤感图片:
伤感图片带字
非主流伤感图片
唯美伤感图片
女生伤感图片
唯美意境图片
悲伤的图片
唯美意境伤感图片
只有字的伤感图片
说说图片
伤心的图片
美甲图片
图片大全
情感图片
微信头像男
动态壁纸
动漫配图
伤感图片
首页
>
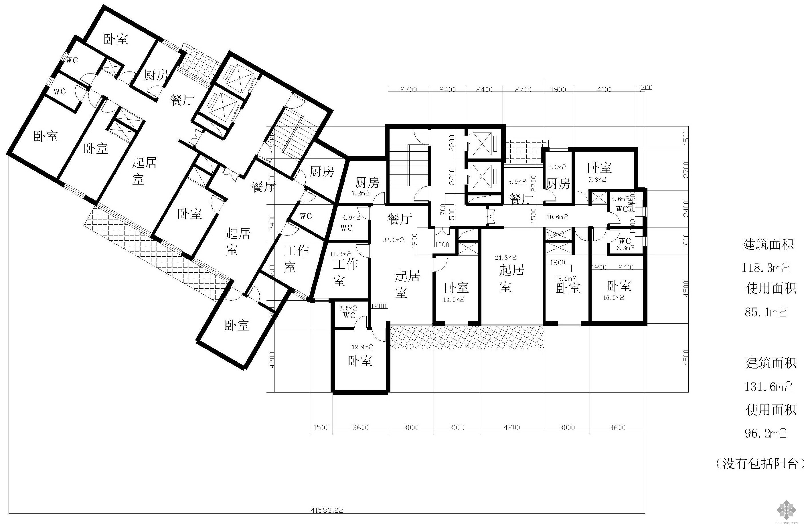
建筑平面示意图
建筑平面示意图,平面示意图
p>建筑平面图,又可简称平面图,是将新建建筑物或构筑物的墙 a href=
办公场所建筑平面示意图
图3-48-1 建筑总平面布置示意图
本工程资料为dwg格式,图纸包括:各版块详细示意图,内外部平面图,各
某地区高层住宅楼建筑参考示意图纸
更多推荐
平面示意图
室内平面示意图
消防平面示意图
车间平面示意图
平面示意图怎么做
楼层平面示意图
商场平面示意图
餐厅平面示意图
公园平面示意图
学校平面示意图
车站平面示意图
小学平面示意图
什么叫平面示意图
简单的平面示意图
景区平面示意图
站厅层平面示意图
故宫平面示意图
医院平面示意图
平面示意图怎么画
动物园平面示意图
建筑图片
小学平面示意图怎么画
行政法庭平面示意图
建筑简单
建筑
建筑施工
现代建筑
三种法庭庭平面示意图
装配式建筑
建筑手绘