首页
伤感说说
动漫配图
心情说说
抖音文案
伤感图片
伤感说说:
伤感的句子说说心情
空间说说
心情说说
爱情说说
女生伤感说说
人生感悟
心情不好的说说
说说带图片
关于生活的说说
说说心情短语
qq空间说说带图片
个性说说
励志名言
一句话经典语录
感悟人生的经典句子
短句吧
情感故事
抖音文案
伤感图片:
伤感图片带字
非主流伤感图片
唯美伤感图片
女生伤感图片
唯美意境图片
悲伤的图片
唯美意境伤感图片
只有字的伤感图片
说说图片
伤心的图片
美甲图片
图片大全
情感图片
微信头像男
动态壁纸
动漫配图
伤感图片
首页
>
铝塑板吊顶剖面图
铝塑板吊顶剖面图,铝塑板吊顶效果图
轻钢龙骨吊顶条形铝扣板饰面构造剖面
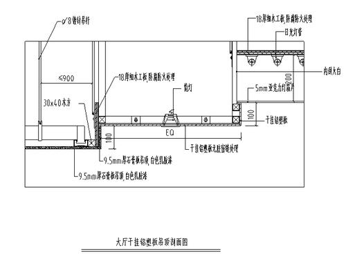
大厅干挂铝塑板吊顶剖面图
石材幕墙与吊平顶相交剖面图 铝板幕墙底部与吊顶连接 女儿墙顶部
铝板吊顶是如何组成的
干挂铝塑板吊顶剖面图
更多推荐
铝塑板吊顶效果图
客厅铝塑板吊顶图片
吊顶剖面图
铝塑板吊顶
卫生间铝塑板吊顶
铝塑板天花吊顶效果图
白色铝塑板吊顶
铝扣板吊顶效果图
铝塑板吊顶安装方法
铝塑板上墙效果图
铝塑板效果图
铝塑板门头效果图
大厅铝扣板吊顶效果图
塑料扣板吊顶
铝塑板墙面
铝板吊顶
铝塑板背景墙效果图
铝塑板图片
剖面图立面图
铝塑板装修效果图片
铝塑板干挂安装图解
铝扣板吊顶安装方法
铝塑板装修墙壁效果图
剖面图效果图
pvc板吊顶
吊顶效果图
铝塑板背景墙
铝塑板门头
铝塑板天花
铝塑板外墙