首页
伤感说说
动漫配图
心情说说
抖音文案
伤感图片
伤感说说:
伤感的句子说说心情
空间说说
心情说说
爱情说说
女生伤感说说
人生感悟
心情不好的说说
说说带图片
关于生活的说说
说说心情短语
qq空间说说带图片
个性说说
励志名言
一句话经典语录
感悟人生的经典句子
短句吧
情感故事
抖音文案
伤感图片:
伤感图片带字
非主流伤感图片
唯美伤感图片
女生伤感图片
唯美意境图片
悲伤的图片
唯美意境伤感图片
只有字的伤感图片
说说图片
伤心的图片
美甲图片
图片大全
情感图片
微信头像男
动态壁纸
动漫配图
伤感图片
首页
>
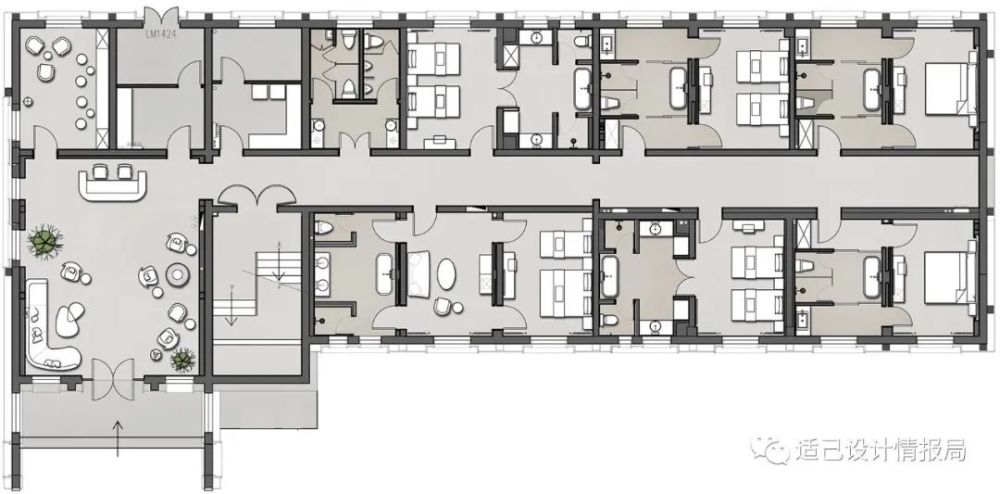
小型宾馆平面设计图
小型宾馆平面设计图,宾馆设计图平面图
酒店客房平面方案你知道多少?带你深入研究解析不出错
设计)#(酒店平面布置图)#(酒店平面图)#(酒店平面布置)#(酒店客房平面
设计)#(酒店平面布置图)#(酒店平面图)#(酒店平面布置)#(酒店客房平面
6层钢混框架结构商务宾馆建筑结构设计cad图纸,其中包含:各层平面图
2021酒店-平面布置图-设计案例合集550张包含总统套房客房大堂
更多推荐
宾馆设计图平面图
宾馆平面图设计图纸
宾馆平面设计图
小型宾馆设计图
小型宾馆平面图
小型宾馆房间设计图
农村小型宾馆设计图
平面设计图小户型
酒店设计图平面图
小型宾馆设计与布局
宾馆设计平面布局
三层小型旅馆平面图
平面设计图效果图
平面设计图简图
宾馆设计图
宾馆平面图示意图
宾馆设计图建筑
平面设计图
自建宾馆设计图
宾馆设计图纸
六层宾馆设计图
小型宾馆装修效果图
三层宾馆房屋设计图
宾馆设计装修效果图
农村自建宾馆设计图
房屋平面设计图
别墅平面设计图
二层宾馆简单平面图
最简单的宾馆平面图
宾馆平面图