首页
伤感说说
动漫配图
心情说说
抖音文案
伤感图片
伤感说说:
伤感的句子说说心情
空间说说
心情说说
爱情说说
女生伤感说说
人生感悟
心情不好的说说
说说带图片
关于生活的说说
说说心情短语
qq空间说说带图片
个性说说
励志名言
一句话经典语录
感悟人生的经典句子
短句吧
情感故事
抖音文案
伤感图片:
伤感图片带字
非主流伤感图片
唯美伤感图片
女生伤感图片
唯美意境图片
悲伤的图片
唯美意境伤感图片
只有字的伤感图片
说说图片
伤心的图片
美甲图片
图片大全
情感图片
微信头像男
动态壁纸
动漫配图
伤感图片
首页
>
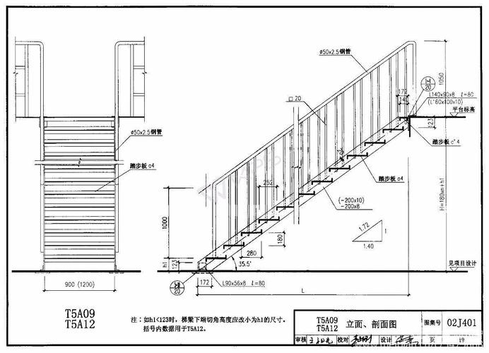
钢梯02j401
钢梯02j401,钢梯02j401图集
02j401:钢梯
钢梯图集02j401中t4a07是什么?
正版全新 15j401钢梯(替代02j401 02 02 j401)
02j401钢梯图集,谁有cad的版本啊 ,急用啊
58 钢梯02j401(上册)
更多推荐
钢梯02j401图集
钢梯图集02j401
15j401钢梯图集
钢梯标准图集02j401
国标02j401钢梯图集
02j401钢梯做法图集
钢梯标准图集15j401
免费15j401图集钢梯
15j401钢梯免费图集
钢爬梯图集02j401
钢梯
15j401钢梯做法图集
钢爬梯02j401标准图集
钢结构楼梯图集02j401
钢梯图集
室外钢梯
屋面钢爬梯图集02j401
直钢梯
室内钢梯
02j401图集室外钢爬梯
室外钢梯图集
钢梯结构
02j401图集
钢梯及钢平台通用图集
02j401钢爬梯做法图集
钢梯图片
屋面爬梯图集02j401
室外钢梯图片
屋面检修钢梯
t2b08a钢梯图集