首页
伤感说说
动漫配图
心情说说
抖音文案
伤感图片
伤感说说:
伤感的句子说说心情
空间说说
心情说说
爱情说说
女生伤感说说
人生感悟
心情不好的说说
说说带图片
关于生活的说说
说说心情短语
qq空间说说带图片
个性说说
励志名言
一句话经典语录
感悟人生的经典句子
短句吧
情感故事
抖音文案
伤感图片:
伤感图片带字
非主流伤感图片
唯美伤感图片
女生伤感图片
唯美意境图片
悲伤的图片
唯美意境伤感图片
只有字的伤感图片
说说图片
伤心的图片
美甲图片
图片大全
情感图片
微信头像男
动态壁纸
动漫配图
伤感图片
首页
>
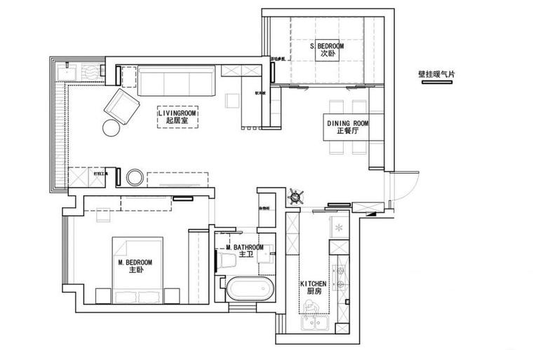
多功能房设计平面图
多功能房设计平面图,多功能房平面设计图
多功能房
把原本的大客厅一分为二,部分给了多功能房. 厨房太小,挪用
改造后平面布局图:在设计师的精心改造设计后,整体功能空间合理布局.
小房子如何装修多功能实用小户型设计要点
小房子就不能贪图多功能?开间变两居,so easy
更多推荐
多功能房平面设计图
多功能房平面图
多功能房设计效果图
多功能房设计
设计房子平面图农村
图纸设计平面图
别墅多功能房设计
平面图设计
城市设计平面图
广场设计平面图
餐厅设计平面图
办公空间设计平面图
茶室设计平面图
办公室设计平面图
教学楼设计平面图
园林设计平面图
广场设计平面图手绘
广场设计平面图园林
办公室平面图设计布局
花境设计平面图
多功能家具设计图手绘
多功能设计
儿童房设计效果图
多功能收纳盒设计草图
多功能椅子设计
开放式多功能房
榻榻米多功能房
多功能家具设计
现代多功能房
多功能创意椅子设计