首页
伤感说说
动漫配图
心情说说
抖音文案
伤感图片
伤感说说:
伤感的句子说说心情
空间说说
心情说说
爱情说说
女生伤感说说
人生感悟
心情不好的说说
说说带图片
关于生活的说说
说说心情短语
qq空间说说带图片
个性说说
励志名言
一句话经典语录
感悟人生的经典句子
短句吧
情感故事
抖音文案
伤感图片:
伤感图片带字
非主流伤感图片
唯美伤感图片
女生伤感图片
唯美意境图片
悲伤的图片
唯美意境伤感图片
只有字的伤感图片
说说图片
伤心的图片
美甲图片
图片大全
情感图片
微信头像男
动态壁纸
动漫配图
伤感图片
首页
>
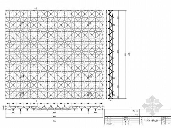
加油站网架结构图纸
加油站网架结构图纸,加油站网架图纸
[浏阳]双层空间网架结构加油站结构图
网架结构加油站结构施工图(独立基础)
关键词: 钢结构施工图加油站收费站球形网架结构
"网架结构"
某加油站网架结构图纸,平面尺寸18*18米,高度6.5米.
更多推荐
加油站网架图纸
加油站钢架结构图
加油站网架图片
加油站图纸设计图纸
加油站结构示意图
网架结构平面图
网架结构示意图
网架结构图
网架结构图集
加油站结构
球形网架结构图片
加油站图纸
加油站罩棚结构
网架结构图片大全
加油站罩棚结构类型
加油站施工图纸全套
网架工程图纸基本识图
网架图纸
网架结构
钢网架结构
网架结构屋顶
钢结构网架
网架图纸教学
网架结构案例
网架结构模型
网架结构螺栓球节点
加油站平面布置图
加油站示意图
加油站设计平面图
加油站简易平面图