首页
伤感说说
动漫配图
心情说说
抖音文案
伤感图片
伤感说说:
伤感的句子说说心情
空间说说
心情说说
爱情说说
女生伤感说说
人生感悟
心情不好的说说
说说带图片
关于生活的说说
说说心情短语
qq空间说说带图片
个性说说
励志名言
一句话经典语录
感悟人生的经典句子
短句吧
情感故事
抖音文案
伤感图片:
伤感图片带字
非主流伤感图片
唯美伤感图片
女生伤感图片
唯美意境图片
悲伤的图片
唯美意境伤感图片
只有字的伤感图片
说说图片
伤心的图片
美甲图片
图片大全
情感图片
微信头像男
动态壁纸
动漫配图
伤感图片
首页
>
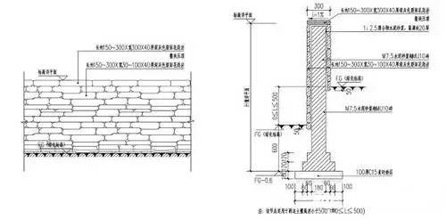
挡土墙及挡水墙图片
挡土墙及挡水墙图片,挡水墙和挡土墙
挡土墙的一些问题,求大师解答
毛石挡土墙结构施工图包含5套图纸
重力式挡土墙标准化施工解析
标准挡土墙
2019水工挡土墙设计规范
更多推荐
挡水墙和挡土墙
挡土墙图片
挡土墙的类型图片
挡土墙各种类型图片
挡土墙图集
挡土墙效果图
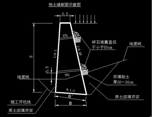
挡土墙示意图
基坑挡水墙图片
挡土墙施工图
挡水墙图片欣赏
施工挡水墙图片
混凝土挡土墙
加筋土挡土墙
挡水墙图片
挡土墙
基坑坡顶挡水墙图片
挡土墙类型
17j008挡土墙图集
仰斜式挡土墙
毛石挡土墙
挡土墙景观
混凝土挡水墙施工图
仰斜式挡土墙标准图
锚杆挡土墙
扶壁式挡土墙
公路挡土墙设计
挡土墙绿化
悬臂式挡土墙
重力式挡土墙
挡土墙景观设计