首页
伤感说说
动漫配图
心情说说
抖音文案
伤感图片
伤感说说:
伤感的句子说说心情
空间说说
心情说说
爱情说说
女生伤感说说
人生感悟
心情不好的说说
说说带图片
关于生活的说说
说说心情短语
qq空间说说带图片
个性说说
励志名言
一句话经典语录
感悟人生的经典句子
短句吧
情感故事
抖音文案
伤感图片:
伤感图片带字
非主流伤感图片
唯美伤感图片
女生伤感图片
唯美意境图片
悲伤的图片
唯美意境伤感图片
只有字的伤感图片
说说图片
伤心的图片
美甲图片
图片大全
情感图片
微信头像男
动态壁纸
动漫配图
伤感图片
首页
>
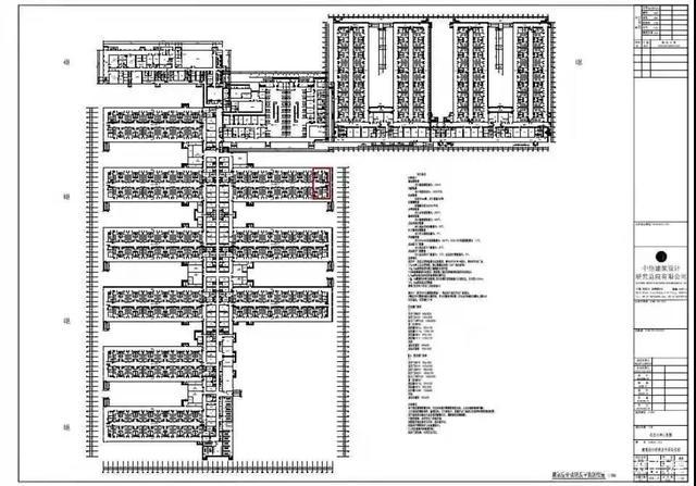
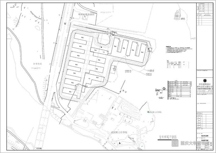
火神山设计图纸
火神山设计图纸,设计图纸与施工图纸
火神山即将完工,看专家如何解读火神山,雷神山设计!(附全套图纸)
火神山含小汤山医院配电设计cad全套电气施工图含设计说明含给排水
建筑设计师们 求为首要目标,根据火神山具体地形
火神山医院设计图-电气2(动力平面及系统,基础接地,室外电气总图,应急
火神山医院正式交付:详细设计图纸 施工细节
更多推荐
设计图纸与施工图纸
设计图纸效果图
设计图纸平面图
别墅设计图纸效果图
火神山和雷神山
别墅设计图纸
设计图纸
房屋设计图纸平面图
设计图纸房屋
建筑设计图纸平面图
设计图纸现代
装修设计图纸效果图
妄想山海房子设计图纸
建筑设计图纸
装修设计图纸
设计图纸一步一步
丑山未向阳宅设计图纸
设计图纸手绘
别墅设计图纸手绘
妄想山海别墅设计图
房子平面设计图纸
装修设计图纸手绘
免费的房屋设计图纸
妄想山海别墅图纸
一般农村房屋设计图纸
火神山
产品设计图纸
明日之后房子设计图纸
机械设计图纸
火神山标志