首页
伤感说说
动漫配图
心情说说
抖音文案
伤感图片
伤感说说:
伤感的句子说说心情
空间说说
心情说说
爱情说说
女生伤感说说
人生感悟
心情不好的说说
说说带图片
关于生活的说说
说说心情短语
qq空间说说带图片
个性说说
励志名言
一句话经典语录
感悟人生的经典句子
短句吧
情感故事
抖音文案
伤感图片:
伤感图片带字
非主流伤感图片
唯美伤感图片
女生伤感图片
唯美意境图片
悲伤的图片
唯美意境伤感图片
只有字的伤感图片
说说图片
伤心的图片
美甲图片
图片大全
情感图片
微信头像男
动态壁纸
动漫配图
伤感图片
首页
>
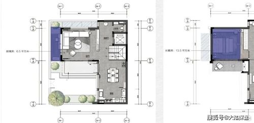
美的西江府别墅户型
美的西江府别墅户型,别墅户型
美的西江府别墅
美的西江府别墅
美的西江府别墅
顺德龙江 美的西江府 一线江景洋房 南北对流 低首付
美的西江府24栋户型图户型图
更多推荐
别墅户型
叠拼别墅户型
别墅户型效果图
别墅户型图
别墅户型平面图
别墅户型设计图
联排别墅户型图
别墅户型图和效果图
户型
房子户型
跃层户型
大平层户型
户型模型
独栋别墅
别墅花园
别墅
大平层户型图
风水学上最完美的户型
小别墅
旺的户型图
户型效果图
风水最好的户型图
户型设计图
知户型
现代别墅
h户型
别墅内部
户型图
别墅真实
别墅装修