首页
伤感说说
动漫配图
心情说说
抖音文案
伤感图片
伤感说说:
伤感的句子说说心情
空间说说
心情说说
爱情说说
女生伤感说说
人生感悟
心情不好的说说
说说带图片
关于生活的说说
说说心情短语
qq空间说说带图片
个性说说
励志名言
一句话经典语录
感悟人生的经典句子
短句吧
情感故事
抖音文案
伤感图片:
伤感图片带字
非主流伤感图片
唯美伤感图片
女生伤感图片
唯美意境图片
悲伤的图片
唯美意境伤感图片
只有字的伤感图片
说说图片
伤心的图片
美甲图片
图片大全
情感图片
微信头像男
动态壁纸
动漫配图
伤感图片
首页
>
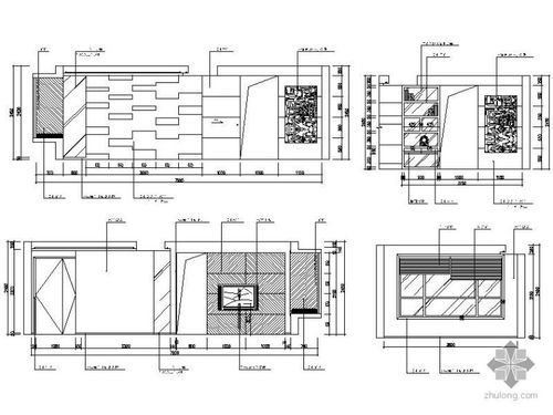
cad电视柜立面图怎么画
cad电视柜立面图怎么画,cad电视柜平面图怎么画
【品牌直营】大理石实木茶几电视柜组合北欧客厅家具现代简约火烧石小
客厅经典分空间cad立面图库
"别看了,这样的立面图你画不出来.
电视柜
cad室内设计及施工图常用图块之客厅立面图 客厅电视柜
更多推荐
cad电视柜平面图怎么画
cad衣柜立面图怎么画
电视柜cad平面图画法
cad客厅立面图怎么画
电视柜cad立面图
电视柜立面图cad
cad飘窗立面图怎么画
cad窗户立面图怎么画
落地窗cad立面图怎么画
cad电视柜立面图尺寸
电视柜cad平面图图纸
cad楼梯立面图怎么画
cad窗帘立面图怎么画
cad餐厅立面图怎么画
cad立面图怎么画
cad立面图怎么画步骤
电视柜cad平面图
cad立面图电视背景墙
cad楼梯剖面图怎么画
电视柜立面图手绘
立面图怎么画卧室
有飘窗的立面图怎么画
电视柜cad图
室内设计立面图怎么画
电视柜立面图
cad立面图衣柜
立面图怎么画
cad画立面图的步骤
电视柜立面图尺寸
cad画立面图最快的方法