首页
伤感说说
动漫配图
心情说说
抖音文案
伤感图片
伤感说说:
伤感的句子说说心情
空间说说
心情说说
爱情说说
女生伤感说说
人生感悟
心情不好的说说
说说带图片
关于生活的说说
说说心情短语
qq空间说说带图片
个性说说
励志名言
一句话经典语录
感悟人生的经典句子
短句吧
情感故事
抖音文案
伤感图片:
伤感图片带字
非主流伤感图片
唯美伤感图片
女生伤感图片
唯美意境图片
悲伤的图片
唯美意境伤感图片
只有字的伤感图片
说说图片
伤心的图片
美甲图片
图片大全
情感图片
微信头像男
动态壁纸
动漫配图
伤感图片
首页
>
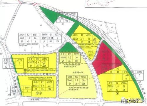
开福区1094地块规划图
开福区1094地块规划图,开福区规划图
长沙城北商业副中心!1094地块调规:商业减少77万方,住宅增加73万方!
保利,开福区,保利堂悦,长沙,周南中学,秀峰山
龙湖,步步高联合竞得开福区限价地块,溢价26%!
开福区将新增中小学,多块地改控规
1094_600
更多推荐
开福区规划图
长沙开福区城北规划图
长沙开福区规划图最新
开福区十四五规划图
140地块儿规划图
长沙市开福区规划图
大连140地块儿规划图
大连140地块规划图
大连甘西140地块规划图
开福区道路规划图
杏坛高新区地块规划图
长沙开福区规划
开福区冯蔡路最新规划
地块规划图
开福区行政区划图
北外滩85号地块规划图
新杨思地块规划图
开福区街道辖区图
开福区街道划分图
地块规划图颜色
长沙地铁规划图
长沙市开福区政区图
徐州地铁规划图
佛山地铁线路图规划
济南先行区详细规划图
长沙市开福区地图
开福区地图
郑州地铁规划图
长沙地铁规划
长沙开福区地图高清