首页
伤感说说
动漫配图
心情说说
抖音文案
伤感图片
伤感说说:
伤感的句子说说心情
空间说说
心情说说
爱情说说
女生伤感说说
人生感悟
心情不好的说说
说说带图片
关于生活的说说
说说心情短语
qq空间说说带图片
个性说说
励志名言
一句话经典语录
感悟人生的经典句子
短句吧
情感故事
抖音文案
伤感图片:
伤感图片带字
非主流伤感图片
唯美伤感图片
女生伤感图片
唯美意境图片
悲伤的图片
唯美意境伤感图片
只有字的伤感图片
说说图片
伤心的图片
美甲图片
图片大全
情感图片
微信头像男
动态壁纸
动漫配图
伤感图片
首页
>
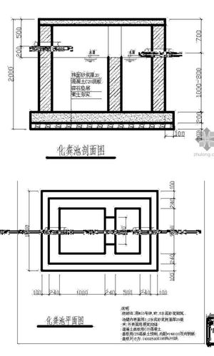
农村二级化粪池结构图
农村二级化粪池结构图,化粪池结构图农村
农村家用化粪池怎么做?二格还是三格好?
农村化粪池结构图纸.
农村厕所化粪池建筑图纸及说明
农村化粪池图纸,简单的
排水管要设计好,要合理方便,那么农村化粪池挖在房子什么位置比较合适
更多推荐
化粪池结构图农村
二级化粪池结构图详解
二格化粪池结构图
化粪池结构图
化粪池结构图自建
化粪池结构图家用
化粪池结构图简易
化粪池结构图及原理
农村化粪池设计图
化粪池结构图三格
砖砌二格化粪池结构图
化粪池结构图做法
二级化粪池尺寸比例图
农村简单二格化粪池
二级化粪池尺寸图片
二级化粪池
三格化粪池结构尺寸图
二级化粪池设计
二级化粪池做法图片
农村砖砌三格化粪池图
农村卫生间化粪池
二化粪池怎么做图片
化粪池的构造
化粪池标准图集
二级路路面结构设计图
化粪池的构造原理
红砖二格化粪池图
化粪池图集
二格式化粪池接管子图
二格化粪池图片